Shadow House

Carrer Sitges, Abrera, Spanien

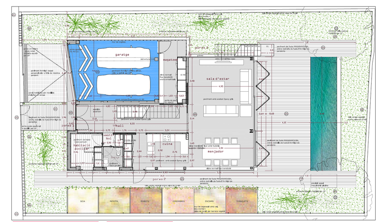
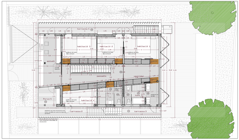
House clearly divided in two areas, a ground floor connecting with all the exterior, and an upper level that searches for a great deal of privacy from the neighbours. The house follows the main entrance axis as an excuse to relate to the exterior. Lateral facades happen to be more eclectic and neutral. Trying all time to disallow the others to know what’s going on inside. Lower program is dedicated to day related activities, leaving the upper level to bedrooms and a common open–studio space. The roof is proposed as an open and active roof, for the users to enjoy the Mediterranean climate.

Project Status
Im Bau

Andere Projekte von Jon Tugores + Architects 

CFv01 House
Sitges, Spanien
Masia Freixa V3.0 Food Laboratory + Restaurant by Chef Carles Tejedor
Terrassa, Spanien
Social Housing for Young People
Montgat, Spanien
To-De House
Sant Pere de Ribes, Spanien
EEC Church
Castelldefels, Spanien