Homeoffice in Schichten
Wohnen und Arbeiten in einem Haus, Ruhe und Geborgenheit finden, eine entspannte Arbeitsatmosphäre schaffen, im Sommer nicht mehr schwitzen müssen und neue Bauweisen ausprobieren – das waren die Beweggründe für diesen experimentellen Hausbau.
Das Baugrundstück befindet sich in einem Wohngebiet am nordwestlichen Rand des Flüsseviertels im Kasseler Stadtteil Bad Wilhelmshöhe. Der 1-2 geschossige Baukörper fügt sich ruhig und harmonisch in die ansteigende Topografie ein. Zur Zufahrtsseite erhält der Neubau einem markanten zweigeschossigen Hochpunkt, aus dem heraus sich ein U-förmiger Sockel entwickelt, der sich um das höher gelegene Gartenplateau legt und dieses maßvoll einbeschreibt. Während sich der monolithische Baukörper aufgrund seiner Nähe zu den umliegenden Nachbargebäuden nach außen als gefasster, eher verschlossener Block artikuliert, öffnet er sich mit großen transparenten Öffnungen zum Innenhof.
Horizontale Schichtung
Charakteristisch für die äußere Gestalt des Hauses ist dessen streng horizontal gegliederte Fassade, die sich typologisch aus der teils felsigen Umgebung ableitet.
Materialität - experimentelle Bauweise - Lebensraum
Um den Eindruck dieser, möglichst durchgängigen und zugleich schroffen Bänderung zu erreichen, fiel die Wahl auf handelsübliche Stahlbeton-Türstürze, die mit ihrer rauen Oberfläche und ihren übergroßen Baulängen von 1,50m das Schichtenwerk optimal thematisieren. Die tief zurückliegenden Fugen der gemauerten Außenfassade verleihen der Fassade zusätzlich Plastizität. Gleichzeitig entstehen, zusammen mit den teils offenen vertikalen Stoßfugen, attraktive Lebensräume für Insekten, die in den Frühjahrs- und Sommermonaten für eine hohe Betriebsamkeit rund um die Gebäudehülle sorgen.
Großflächige, aus dem Fassadengefüge herausgearbeitete Perforationen, verleihen dem Gebäude nach außen eine bewusste Verschlossenheit, erzeugen im Inneren jedoch geborgene, teils kontemplativ anmutende Raumsequenzen.
Kontrastiert wird das schroffe Betonrelief durch die teilweise bis tief in die Fassade eingeschnittenen Holz-Leibungen der Fenster und Loggien.
Auch die horizontal gegliederte Holzlamellenfassade des Obergeschosses, hinter der sich die Schlafräume befinden, fügt sich dem durchgängigen Linienwerk der Fassade. Um die reduzierte plastische Wirkung der Gebäudekuben nicht zu stören, wird auf die Ausbildung gewöhnlicher Attika-Blechabschlüsse komplett verzichtet.
Reduzierte Innenraumsprache
Im Inneren des Hauses harmonieren puristische Sichtbeton- und Holzoberflächen und lassen ruhige, teils offene, teils introvertierte Raumzusammenhänge entstehen, die auf die jeweiligen Nutzungsbedürfnisse reagieren.
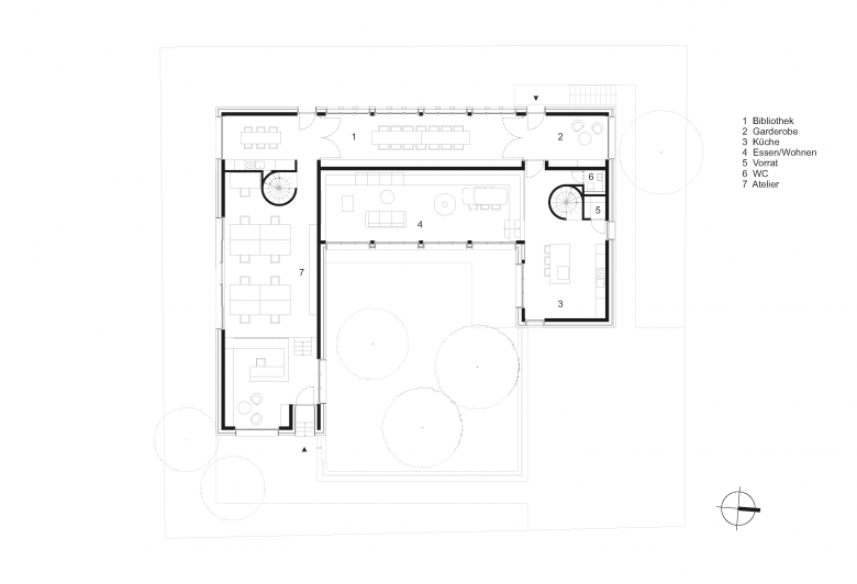
Bibliothek als Mittelpunkt
Wohn- und Arbeitsnutzung werden wie zwei ineinander verschränkte L-Figuren organisiert. Den Mittelpunkt des Hauses bildet die über zwei Ebenen eingeschnittene Bibliothek. Sie liegt an der Schnittstelle der beiden Nutzungen und kann über raumhohe Türelemente zu jeder der beiden Einheiten zugeschaltet bzw. abgekoppelt werden. Im Erdgeschoss steckt sich der langgestreckte Raum durch das gesamte Gebäude hindurch und lässt an seinen Enden kleine gefasste Kabinette mit Passepartout-artigen Ausblicken ins Freie entstehen. Hier werden die Garderobe des Wohnbereichs und die Atelierküche untergebracht.
Eine offene Galerie begleitet die Längsseite der Bibliothek im Obergeschoss, erschließt die privaten Schlafräume und stellt die Verbindung der beiden Nutzungseinheiten her.
Wohn- und Essbereich folgt dem Geländeniveau
Aufgrund der ansteigenden Topografie wird das Erdgeschoss auf zwei unterschiedlichen Höhenniveaus modelliert. Der abgesenkte Wohn- und Essbereich erhält hierdurch eine seiner Nutzung angemessene Höhe und Proportion. Mit seiner Längsseite öffnet sich der Raum über vier große Öffnungen zum angrenzenden Gartenplateau.
Eine, den Raum dreiseitig umschließende, Sitzbank aus Holz modelliert den Höhenversatz, beschreibt den Essplatz, die Sofa-Lounge und einen freihängenden Kamin in ihren Verlauf ein und orientiert sich ebenso zum Freiraum.
Die aus lediglich zwei schlichten Blöcken bestehende offene Küche schließt sich fließend an den Wohn- und Essbereich an und orientiert sich ebenfalls zum Gartenhof.
Zweigeschossiges Atelier
Das sich im südlichen Flügel befindliche Atelier erhält einen separaten, tief in die Fassade hineingeschobenen Zugang, der in den ebenfalls überhöhten Eingangsbereich überleitet. Die Atelierfläche wird auf zwei Ebenen (zzgl. Archiv- und Nebenräumen im Keller) organisiert und kann als abgeschlossene Einheit betrieben werden.
Skulpturale Erschließungsspindeln
Beide Nutzungseinheiten werden mit zwei kompakten, kreisrunden Treppenröhren erschlossen, in die skulptural ausgeformte Spindeln aus Brettschichtholz einbeschrieben werden.
Langlebigkeit und Wiederverwendbarkeit
Leitmaterialien des neuen Wohn- und Ateliergebäudes sind die Baustoffe Beton und Holz. Sie stehen für Geborgenheit, Langlebigkeit und eine hohe Widerstandsfähigkeit. Sämtliche Betonstürze der Außenfassaden sowie alle verwendeten Holzwerkstoffe können bei einem Rückbau sortenrein wiederwendet werden, bzw. ihrer Ursprungsbestimmung (Türstürze) zugeführt werden.
Regionale Materialien und hoher Vorfertigungsgrad
Der regional hergestellte Beton stammt aus dem benachbarten Eichsfeld. Seine charakteristische warmtonige Färbung verdankt er den spezifischen gelblichen Zuschlagsstoffen. Auch im Gebäudeinneren kommen in den Wand- und Deckenbereichen großflächige Betonfertigteile zum Einsatz, um einen möglichst hohen Vorfertigungsgrad zu erzielen. Aus Kostengründen wurde auf eine Klassifizierung des Sichtbetons komplett verzichtet, was dem Gebäude auch im Inneren seinen leicht rauen, handwerklichen Beton-Charme verleiht, der mit präzise gefügten Holzeinbauten kontrastiert wird.
Freiraum
Den Mittelpunkt der Freiraumgestaltung bildet das in den Baukörper eingeschobene höherliegende Gartenplateau, das mit mehrstämmigen Kirschbäumen bestanden ist und einen beschaulichen, mit einer Hainbuchenhecke gefassten Rückzugsort für den Wohnbereich bietet. Um das Haus herum legt sich ein grüner Saum robuster Pflanzen, in den die Zuwegungen und kleine Außenterrassen des Ateliers einbeschrieben werden.
- Jahr
- 2024

















