Lager- und Werkstattgebäude Im Bernet

Sindelfingen, Deutschland
Foto © Brigida González

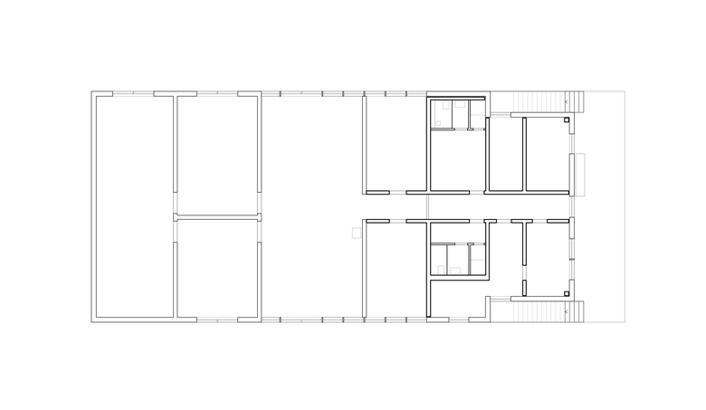
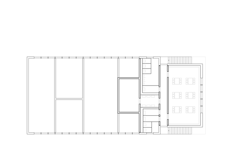
Der Neubau besteht aus einem 2-geschossigen Einbau aus Ortbeton und einem ‚übergestülpten’ kubischen Volumen in Holzbauweise. Der Einbau beinhaltet im EG die Büro- / Sozialbereiche der Mitarbeiter sowie die Schweiß- und Elektrowerkstatt. Im von außen separat erschlossenen OG des Kopfbaus wurden ein Aufenthaltsraum, Sanitärräume und der zentrale Haustechnikraum angeordnet. Im 2-geschossigen Hallenteil befinden sich die Lagerbereiche. Das Gebäude wurde in Holz- Ständerbauweise errichtet. Alle Außenwände wurden in 1,25m breiten und
gebäudehohen Wandstreifen elementweise vorgefertigt. Die Außenwandverkleidung besteht aus hinterlüfteten weißen Faserzementtafeln im Regelformat 125cm x 300cm.

Foto © Brigida González
Foto © Brigida González
Foto © Brigida González
Foto © Brigida González
Foto © Brigida González
Foto © Brigida González
Foto © Brigida González
Foto © Brigida González
Foto © Brigida González
Grundriss EG
Zeichnung © Simon Freie Architekten
Grundriss OG
Zeichnung © Simon Freie Architekten
Längsschnitt
Zeichnung © Simon Freie Architekten

Andere Projekte von SFA Simon Freie Architekten BDA 

Betriebshof und Städtebauliche Neuordnung Wingertsbuckel
Mannheim
Kulturzentrum Uhingen
Uhingen, Deutschland
Forschungsgebäude für Pharmazie
Saarbrücken, Deutschland
Kindertagesstätte Limespark
Kindertagesstätte und Jugendzentrum
Stuttgart, Deutschland