Japanisches Onsenbad
der Ort – Bora Japansauna:
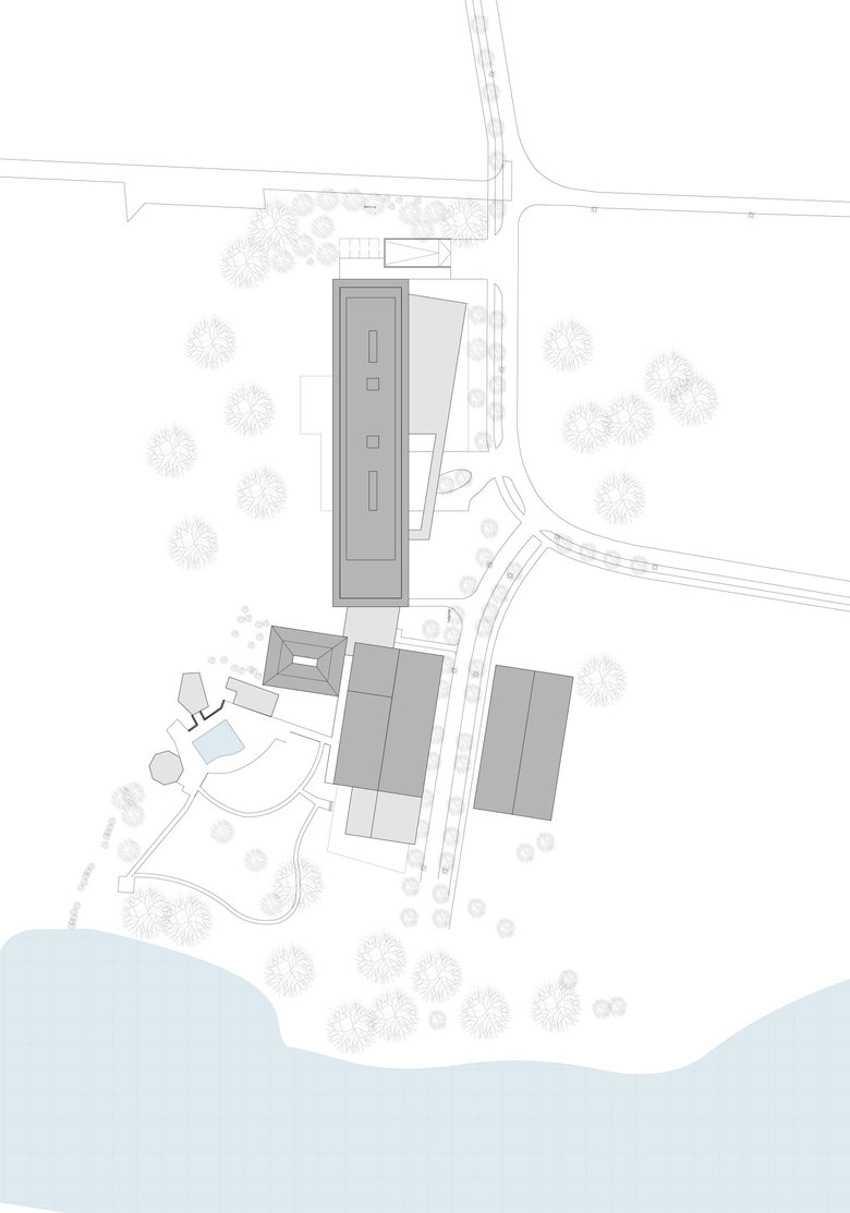
Das Grundstück grenzt unmittelbar an ein Landschaftsschutzgebiet. Dieses ist Teil der Verlandungsebene des Bodensees und beheimatet nehen einer Vielzahl von Vegetationsformen auch die Rohrkolbenpflanze (lat. Typha). Das Gebäude ergänzt die bestehende Bora Sauna und verbindet sie funktional und figürlich mit dem neu errichteten Bora Hotel.
das Gebäude / die Typologie:
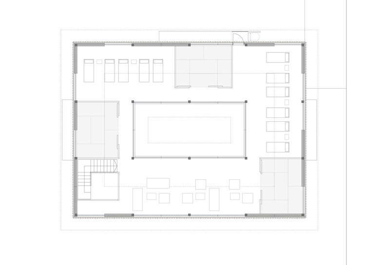
Das neue Saunahaus orientiert sich typologisch an den steinzeitlichen Pfahlbauten des Bodensees, es steht aufgeständert halb im Wasser und halb am Land. Das Gebäude ist im Stil eines Sentõs, eines japanischen Badehauses, gestaltet und soll den Gast auf eine Reise in das Reich der aufgehenden Sonnen entführen.So bildet der Onsen, ein Heisswasserbecken, in einem klimaoffenen Innenhof gelegen, das Zentrum des Gebäudes. Hierum gruppieren sich im Erdgeschoss eine Bambus- und Dampfsauna, Umkleiden sowie Waschräume u.a. mit japanischen Sitzduschen. Im Obergeschoss befindet sich Ruhezonen die gleichermassen loungeartig modern und als traditionelle Tatamiräume mit Shoji Wänden ausgebildet sind
die Konstruktion:
Der japanische Holzbau wurde strukturell als Vorbild übernommen. Die moderne Holzskelettbauweise basiert auf einem Konstruktionsraster von 4,3 m. Die zimmermannsmäßige Hauptkonstruktion wird aus 18/18 Pfosten, 18/32 BSH 1 Feld-Unterzügen, massiven Kreuzlagenholz – Decken und einem einfachen Pfettendachstuhl mit Grat- und Kehlsparren gebildet. Die Gründung erfolgt auf einem massiven UG als WU-Betonwanne.
Außenwände, Innenwände und Dach werden mit Typhaplatten ausgefacht. Sie übernehmen im Wandaufbau sowohl die Dämmung als auch die Längsausssteifung der Wände und erfüllen vollständig alle schall- und brandschutztechnischen Anforderungen an die Wandbauteile. Aussenwände: Die 24cm starke Wandkonstruktion wurde mit 2 x 9 cm direkt verschraubten Typhaplatten fugenüberdeckt ausgefacht, zusätzlich wurde das Holzskelett aussenseitig mit einer 6cm Platte flächig überdeckt. Die Aussenwand erreicht so den geforderten U-Wert von 0,23. Die Tyhpawand wird aussen mit Kalkputz und innen mit Lehmputz abgeschlossen. So entsteht ein vollständig diffusionsoffener 1-schichtiger monomaterieller Wandaufbau. ( U-Wert = 0,23 ).
Innenwände: Die 12 cm Wandkonstruktion wurde mit 2x6 cm Typhaplatten errichtet und mit Lehmputz vervollständigt.
Dachkonstruktion: vorgefertigte Sparrentafeln wurden unterseitig mit Putzträgerplatten beplankt und oberseitig mit 6 cm Typhaplatten belegt. Die 18 cm tiefen Sparrengefache sind ausgeflockt. Die Dachkonstruktion erreicht so den geforderten U-Wert von 0,23. Das Dach wird aussen mit Lattung,Konterlattung und Lärchenspaltschindeln und innen mit Lehmputz abgeschlossen. ( U-Wert = 0,23 )
Aufgabe
Neubau eines Japanisches Onsenbads, als Erweiterungsbau der bestehenden Bora Saunaanlage und Wellnessanlage für das benachbarte 4-Sterne Superior Bora Hot Spa Resort Hotel.
Umfang
Lph 1- 8
Klimaoffener Innenhof mit heissem Onsen Becken
Herumgrppiert im EG eine Bambus- und Dampfsauna, Umkleiden, Waschräume mit japanischen Sitzduschen. Im OG konventionell möblierte Ruhezonen im Wechsel mit traditionellen, mittels Shoji Wände abgetrennten, Tatamiräumen
430 m² BGF, 2.500 m³ BRI
Kunde
Bora Sauna GmbH & Co.KG
Leistung
Städtebau-, Freiflächen-, Objektplanung und raumbildender Ausbau
Planungs-/Bauzeit
2011 - 2016
Projektbeteiligte
Bruno Franchi
Mitarbeiter: Lucia Gratz, Uta Bahn, Stefan Horn
Zusammenarbeit bei raumbildenden Ausbau mit:
Biquadra, Meran
Interior in Zusammenarbeit mit:
Biquadra, Meran
Fotos
Kuhnle+Knödler, Radolfzell
Bruno Franchi, München
- Jahr
- 2018










