Zeichnung © Bruno Franchi

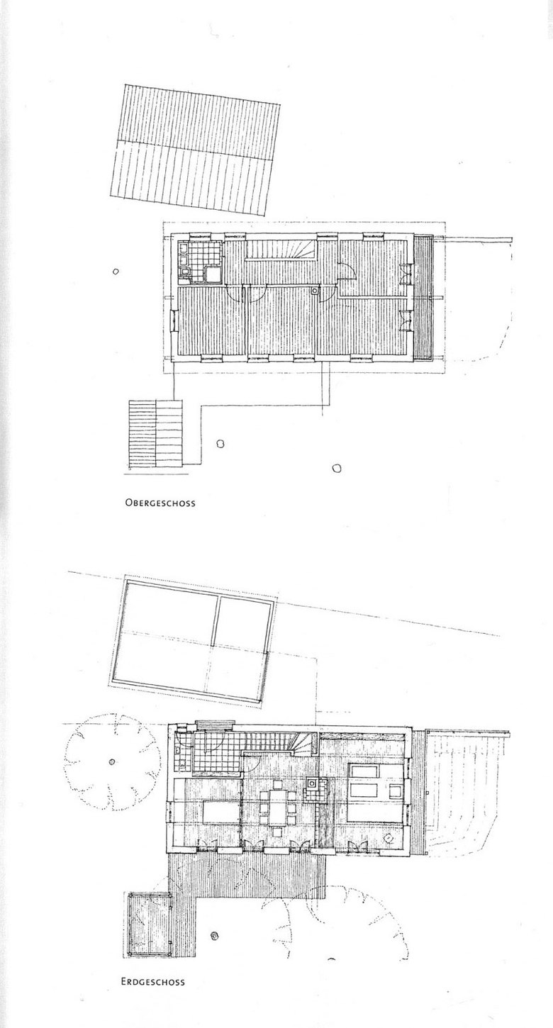
Einfamilienhaus mit Garage und Gartenhaus für eine 6-köpfige Familie. Umfang. 200 qm WF, Garage, Gartenpavillon

Video
“Die große Kunst, ein kleines Haus zu bauen”, von Dieter Wieland im BR (Bayerischer Rundfunk)

Kunde
privat

Leistung
Architektur und Interior

Bearbeitungszeitraum
1998-2000

Projektbeteiligte
Bruno Franchi

Fotos
Jens Weber, München
Bruno Franchi, München

Zeichnung © Bruno Franchi
Foto © Jens Weber
Foto © Jens Weber
Foto © Jens Weber
Foto © Jens Weber
Foto © Bruno Franchi
Foto © Bruno Franchi
Foto © Bruno Franchi

Wohnhaus Link

 Zurück zur Projektliste
Standort
Pöcking, Deutschland
Jahr
2003

Andere Projekte von Studio Bruno Franchi 

Kolonialhotel “Bell Rock”
Rust, Deutschland
Hofstelle Ebn
Simbach, Deutschland
Haus der Bürger und Vereine
Pöcking, Deutschland
Japanisches Onsenbad
Radolfzell, Deutschland
Bora Hot Spa Resort
Radolfzell, Deutschland