Theater und Philharmonisches Orchester

Theaterstraße 6-10, 69117 Heidelberg, Deutschland
© Thomas Ott

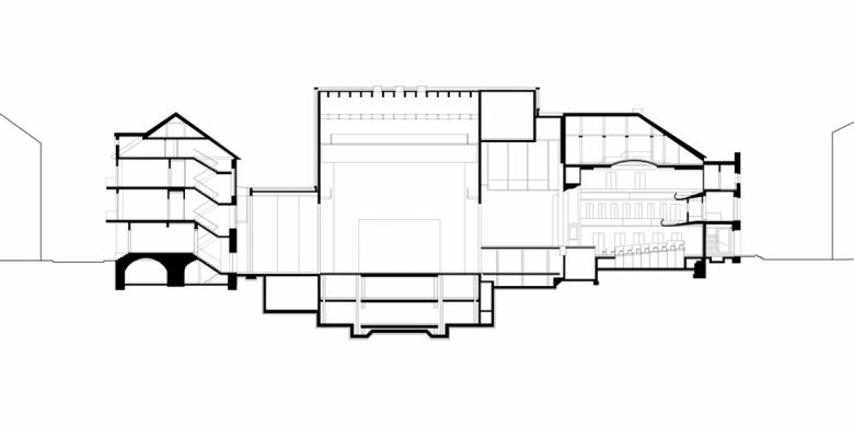
Die große Kubatur der Theaterfunktionen verbirgt sich unter einer durchgehenden nur zweigeschossigen Dachplatte. Diese fährt allseitig die Grundstückskanten nach und verbindet so die heterogene Gebäudesubstanz des historischen Bestands. Die aufragenden Kuben der Proberäume und des Bühnenturms bilden maßstäbliche Hochpunkte und Gliederungen innerhalb der Dachlandschaft der Altstadt. Die senkrechte, feingliedrige Fassadenstruktur aus hell eingefärbten Sichtbeton-Fertigteilstützen nimmt vorhandene Proportionen auf und gibt den Altbauten ein zurückhaltendes, ruhiges Passepartout, so dass diese in ihrer Wirkung gesteigert werden. Aus der Kombination der alten und neuen Bühnenbereiche ergibt sich eine untypische Seitenerschließung des neuen Theatersaals, aus der ein neuartiges Raumkonzept mit vielfacher Bespielbarkeit entwickelt wird.

© Thomas Ott
© Thomas Ott
© Thomas Ott
© Thomas Ott
© Thomas Ott
© Thomas Ott
© Thomas Ott
© Thomas Ott
© Thomas Ott
© Thomas Ott
© Thomas Ott
© Thomas Ott
© Thomas Ott
© Thomas Ott
© Thomas Ott
© Thomas Ott
© Thomas Ott
© Thomas Ott
© Thomas Ott
© Thomas Ott
© Thomas Ott
© Thomas Ott
© Thomas Ott
© Waechter + Waechter Architekten BDA, Darmstadt
© Waechter + Waechter Architekten BDA, Darmstadt
© Waechter + Waechter Architekten BDA, Darmstadt
© Waechter + Waechter Architekten BDA, Darmstadt
© Waechter + Waechter Architekten BDA, Darmstadt
© Waechter + Waechter Architekten BDA, Darmstadt
Jahr
2012
Bauherrschaft
Theater und Orchesterstiftung Heidelberg - vertreten durch GGH Gesellschaft für Grund- und Hausbesitz mbH Heidelberg
Wettbewerb
2008, 1. Preis
Auszeichnung
ICONIC Award 2013
Auszeichnung
2013, DAM Preis für Architektur in Deutschland
Auszeichnung
2014, Hugo-Häring-Auszeichnung, BDA Heidelberg
Preisträger
2015, Hugo-Häring-Landespreis
Special Mention
2015, German Design Award, Kategorie Architecture and Urban Space
Nominierung
2016, Staatspreis Baukultur Baden-Württemberg

Andere Projekte von Waechter + Waechter Architekten 

Sanierung und Aufstockung Herderschule
Darmstadt, Deutschland
AFZ Assessment- und Förderzentrum Neuwied
Neuwied-Engers, Deutschland
AIZ ‐ Akademie der Deutschen Gesellschaft für Internationale Zusammenarbeit (GIZ) am Campus Kottenforst
Bonn, Deutschland
Internat Berufsbildungswerk Josefsheim
Olsberg, Deutschland
Haus im Burggarten – Wohnpflegeheim
Breitenbach am Herzberg, Deutschland