Engadiner Museum
Neuinszenierung und Sanierung Engadiner Museum, St. Moritz
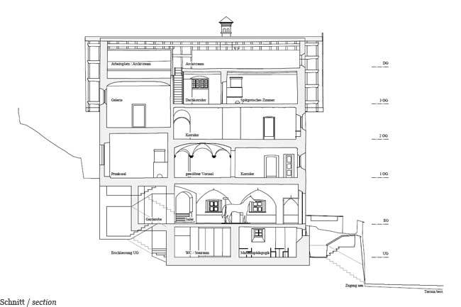
Das 1906 erbaute Engadiner Museum beherbergt eine bedeutende Sammlung von Engadiner Stuben und Interieurs. Mit Respekt für den Bestand vereint die Neuinszenierung Altes und Neues, um das Museum aus seinem Schlummerzustand zu erwecken. Durch die grosszügige Zugangsrampe erhält das Museum eine stärkere Präsenz nach aussen hin. Im Erd- und Untergeschoss wird das Haus um die bis anhin fehlenden Infrastrukturräume erweitert. Das Leitsystem samt Audioguide führt die Gäste von der gewölbten Eingangshalle durch das neu ausgeleuchtete Museum in dessen Herz: die restaurierten historischen Stuben. Zudem wurde die gesamte Gebäudehülle mit Sgraffiti saniert, das Dach erneuert und die komplette Haustechnik ersetzt.
- Jahr
- 2011










