Garden Restaurant
A green oasis at the heart of the city.
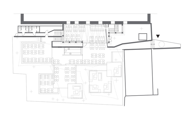
The garden restaurant’s location – a green space surrounded by historical buildings at the heart of Kiev – and the old trees with their protective canopy of leaves have helped shape the spot and give it its unique atmosphere. The central concern was to capture these characteristic features and further enhance them with a sensitive approach to the overall design: floating levels, lightweight structures and clear, elegant materials characterise the ambience of the garden restaurant. The visitor is welcomed through a distinctively designed timber entrance tunnel. The inner courtyard thus remains completely shielded from the outside world, giving the feeling of entering into another, separate world. The garden restaurant has been purposely reduced and simply designed, both formally and with regard to the choice of materials. A crucial role here was played not only by its relationship with the locality, the establishment of shape and form and the choice of materials, but also by the lighting concept.
Client
Orangery Limited
Construction period
06/2010 until 08/2010
Construction costs
approx. 1.5 million euros
Gross floor area
approx. 1400 m², of which 140 m² conservatory
Gross cubic volume
420 m³ conservatory
Service phases
1 to 9
Project team
Anke Pfudel-Tillmanns (project management), Martin Reimer
Photographer/s
beproactiv
Viktor Boyko
Graphics
Baumann & Baumann Büro für Gestaltung
- Year
- 2010
- Project Status
- Built









