Haven
The comprehensive transformation of the former Haven of Rest Ministry headquarters in the Silver Lake Neighborhood of Los Angeles, after a myriad of lives as music and film production offices, tattoo parlor, law and therapy offices, and storage garage, centered on the creation of a contemporary creative office campus enveloping a landscaped courtyard and amphitheater.
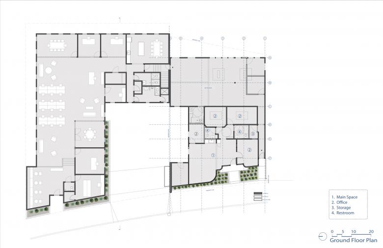
Divided into five zones over two floors within a U-shaped footprint - equipped with the ability to conjoin or subdivide as required - the building consists of a primary office space, photo studio, and secondary office on the first floor and two separate co-working offices on the ground floor. While each zone is assigned its own combination of office typologies, all are outfitted with updated infrastructure, materials and furnishings, and new windows that bathe the interiors in natural light.
The landscaped courtyard, a former driveway to access the ground floor garage, is used as an outdoor work area, open- air lounge and lunch room, and presentation space. Courtyard adjacent exterior walls serve as a canvas for local artists, while the amphitheater is a venue for hosting community events.
- Year
- 2019
- Team
- Aaron Neubert (Principal), Jeremy Limsenben, Jina Seo, Shuxin Wu
- Landscape
- LPO/ANX
- Structural Engineer
- Craig Phillips Engineering
- MEP
- Hariton Engineering
- Contractor
- CCI












