OZU East Kitchen
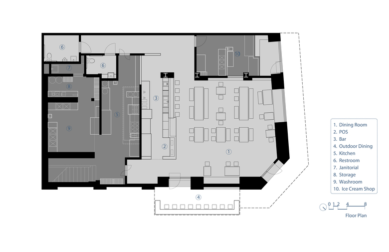
OZU East Kitchen, located in the Atwater Village neighborhood of Los Angeles, is the prototype and initial brand identity for a suite of restaurants focusing on Japanese and Korean influenced cuisine served in a fast-casual environment. Inspired by the technical craftsmanship and narrative clarity of the art of legendary Japanese filmmaker Yasujiro Ozu, the restaurant design is a study in the potential of a minimal yet visually and materially rich palette to generate an immersive and socially dynamic environment.
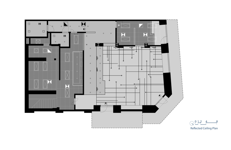
The interior experience is delineated by three horizontal spatial zones. The lower zone contains the furnishings occupants physically interact with - warm in color and texture. The middle zone is painted white and free of visual clutter to emphasize the conversational space and interaction between seated occupants. The upper zone - consisting of the transition between the white walls and the dark gray ceiling - creates the mood and develops a detailed visual landscape while occupants are standing and circulating within the restaurant. The intentional misalignment between these three zones within the composition is utilized to continuously reposition the occupant’s orientation within the space, omitting the standard transitions commonly utilized and rendering the environment provisional in nature.
The ceiling installation, intended to evoke the pliability of the ramen noodle and supplant the traditional Japanese lantern, was fabricated from tube steel and suspended high above the dining room. The walnut bento stools and benches were inspired by their functionally minimal namesake the bento box. Created through the combination of the folded seat and the interlocking base, the bento set is simple and utilitarian, yet warm and associative. The choice of a single, double, or quadruple arrangement encourages a casual and interactive experience. The complementary steel framed and reclaimed finger-jointed walnut topped tables serve to facilitate the variety of social dining possibilities.
- Year
- 2016
- Project Status
- Built









