SUSHI TAKIGAWA
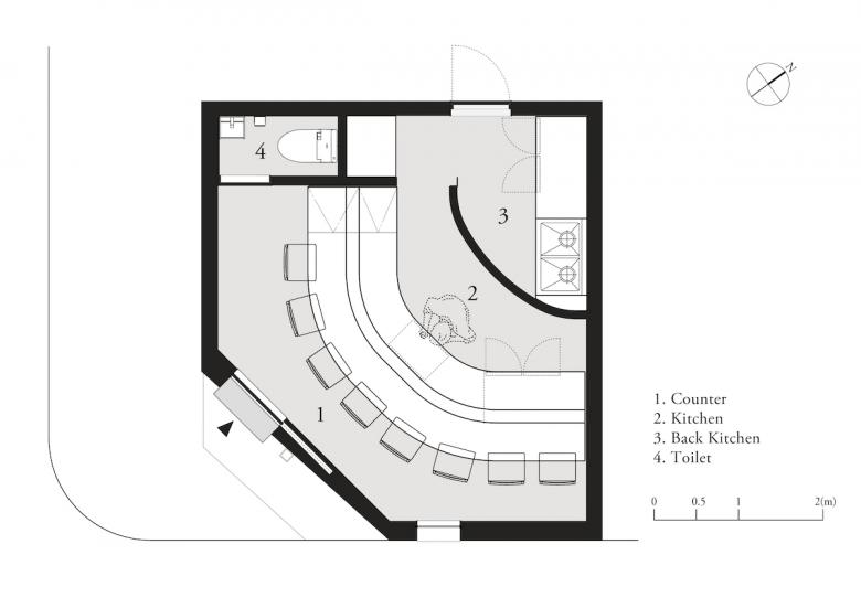
A minimal, approximately 20sqm sushi restaurant. The site was a former dry cleaner in a wood structure with an uneven exterior wall line and roof shape in comparison to the shape of the land. The client requested for a counter type sushi restaurant where the chef can stand in the center. To fulfill this request, we created a counter that was curved parallel to the line of the exterior wall to maintain maximum seatings in its small form. A simple blank wall without any function was placed behind the sushi craftsman, while most cooking utilities aside from the ones used for preparation were hidden beneath this curved counter. We succeeded in avoiding the backyard of the restaurant to be visible from a close range to the guests. The tapered ceiling spreads from the kitchen towards the guests radially. While keeping the air conditioning and other equipments in the ceiling as much as possible, the tapered characteristics gave the atmosphere a centrality. Gingko was used as the main material of the counter, surrounded by other tranquil elements from the same color palette such as the clayey wall and Japanese cypress. The original roof was replaced with Galvalume plates, and the exterior walls were finished with stucco. While the exterior was designed to quietly blend into the surroundings at night, we aimed to create a clearly distinct atmosphere for the interior.
Type of Project: Interior
Use: Sushi Restaurant
Period: Feb 2019 – Jul 2019
Floor Area: 19.27m2
Location: Fukuoka, Japan
Design: Koichi Futatusmata, Riki Harada(CASE-REAL)
Construction: Ob
Lighting Plan: ModuleX FUKUOKA
Manufacture of Furniture: E&Y
Sign: Souji Nishimoto
Photo: Hiroshi Mizusaki
- Year
- 2019
- Project Status
- Built















