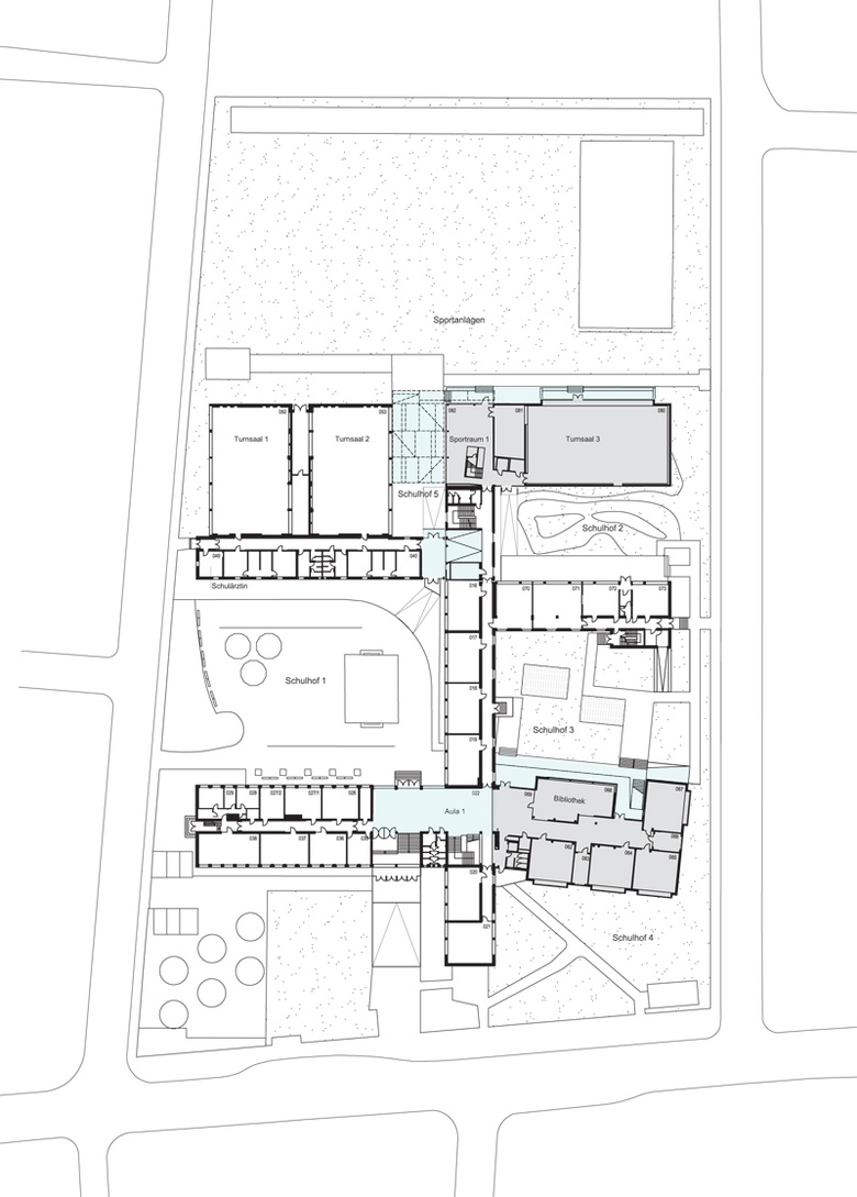
Five Courtyards for BG Zehnergasse
The two new building parts by GABU Heindl Architektur to the existing grammar school (planned 1962-64 by STEINFELDER/JAKSCH architects) refresh the existing typology by creating five new courtyards: a front garden, the “reading court”, an afternoon court and a pergola sports courtyard with a workshop arena next to it. The slight twist of the new classroom building informs a spatial quality in the inside by creating different viewing angles, while at the same time strengthening the quality of the central aulas of the existing part.
The edge between inside and outside is being challenged on all facades: In the North deep alchoves create “window spaces” for the kids, to be lived in and explored within the classrooms, while in the South deep balconies and terraces allow gradual outdoor use of the sunny side of the buildings. The outdoor classrooms, benches, ramps, and the roof terrace give space to a concept of learning as something that can take place anywhere.
The new sports building extends the sport facilities with an indoor sporthall, additional exercise and break rooms as well as a pergola to be used as an outdoor sports arena.
Within participative workshops the 100 teachers and part of the 1000 school-kids were part of the design process. It was such inclusion of the users which made it obvious that the working places of the teachers needed to be enlarged by refurbishing one wing of the existing school building from the 60ies.
- Year
- 2013
- Project Status
- Built









