Brunner Innovation Factory
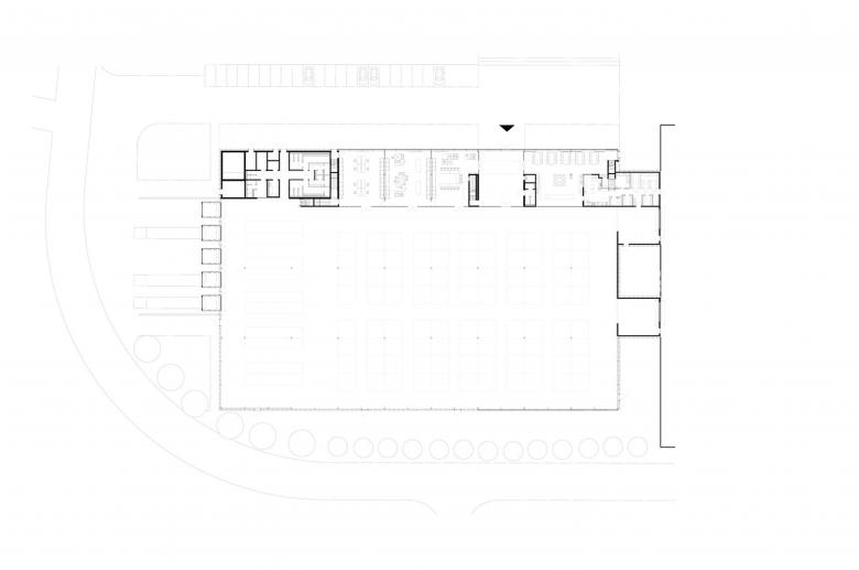
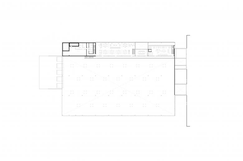
The extension of a production plant of the furniture manufacturer Brunner in Rheinau/Baden integrates production, test and research workshops, offices, as well as a bistro and showrooms in a compact structural form. Final assembly of the furniture is carried out in the two-storey building. The workshop and consignment areas are located in the hall at the rear.
Construction details and the materiality of the furniture have been addressed by the architecture and made widely visible, whereby special attention has been paid to the visible roof support structure, which is a modular arrangement composed of wooden elements that can be easily extended. Even from a distance the structure can be perceived through the transparent façade. It is also characterised by the distinctive recurring intersections of the pincer structure. The efficiency of this construction is reflected in its light and delicate appearance. Square skylight domes provide natural illumination.
The design is characterised by a pleasant working atmosphere and homogeneous workplace quality. Additional levels have been established in the hall along the length of the transparent façade and are connected to each other by a gallery. They are used for a bistro, office space as well as for research and development.
The softly reflecting metal façade with its lightweight structure gives the assembly and consignment areas an industrial appearance. This sophisticated material reflects the green surroundings and complements the warm wood finish of the interior. The Brunner hybrid building serves as a production showcase. The new building opens up the company and allows visitors insights into the manufacturing process.
- Year
- 2018
- Client
- Brunner GmbH
- Area GFA
- 7 477 m²
- Structural Engineering
- Schlaich Bergermann Partner – sbp
- MEP
- b.i.g. bechtold
- Bauphysik
- Müller-BBM
- Brandschutz
- hhpberlin
- Landschaftsarchitektur
- Rainer Schmidt Landschaftsarchiteken














