High-Voltage Test Laboratory
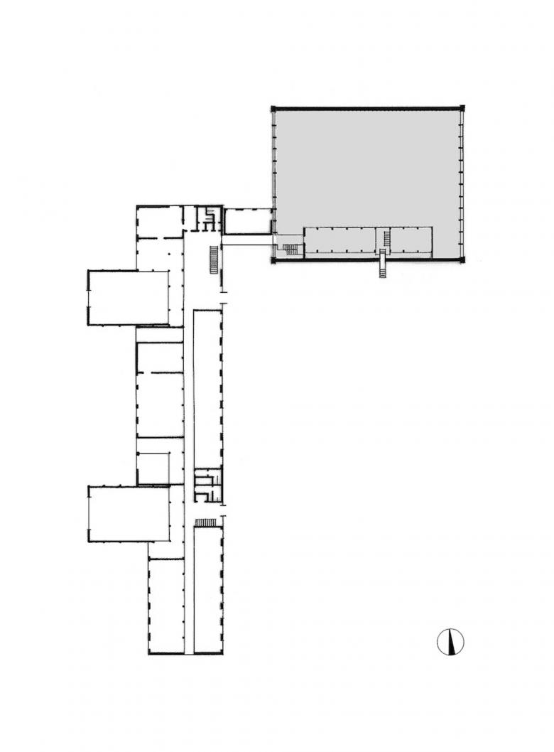
In 1958, Walter Henn was given the commission to design a high-voltage test laboratory in Berlin-Siemensstadt by Siemens-Schuckertwerke. The facility consists of a laboratory building, two small testing halls and a large high-voltage hall.
The laboratory building has a single corridor, one room on each side layout, in a two-storey reinforced concrete skeleton frame with external brickwork which is cladded in a light grey Buchtal split tile. The steel window profiles were placed flush into the reveals and form one flush surface with the building facade. The two small testing halls are arranged as annexes at the side of the laboratory. Their outer skin is formed of aluminium sheet cladding on a steel profile substructure.
The large high-voltage hall, which connects at right angles to laboratory building through an intermediate structure, posed a particular challenge. Its form and dimensions were determined by the dimensions of the electrical infrastructure. The design avoided unused air space in the upper third of the hall and provided additional useful floor area at ground level. The design of the vaulted roof as a diamond-shaped lattice structure was developed with the help of the contractor Beton- & Monierbau. It allowed the whole hall to be made out of only two different types of precast reinforced concrete components, namely T-beams and triangular filler pieces. A particularly important issue was the electrical screening of the building. Walter Henn made his own test model, which he used to convince the client's construction department that the hall should be completely built of copper. This was the reasoning behind the adoption of an expensive material for cladding the hall and the use of the roof skin as electrical screening. Today the hall still impresses in terms of its functionality, construction and aesthetics, and is a listed building.
- Year
- 1960
- Client
- Siemens-Schuckertwerke






