Life Science Advanced Research Center
The Life Science Advanced Research Center (LS ARC) is a new research building designed by HENN for Merck’s global headquarters in Darmstadt. The new building brings together research on key technologies of the Life Science business sector of Merck. These include raw materials and processes for researching and manufacturing antibodies, recombinant proteins and viral vectors. The company also researches cell culture media and pharmaceutical formulation and purification aids as well as digital reference materials. In addition, the scientists are developing analytical chromatography further. Research along the mRNA value chain will also be based in the new center.
Facing the city center, the building will be a cornerstone of the new research and development campus. This campus is being built along the so-called Innovation Mile marked at its southern end by the Innovation Center at Emanuel-Merck-Platz, which was also designed by HENN.
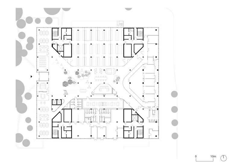
The new Life Science Advanced Research Center is a global model for the laboratory of the future. It will be a place where laboratories, offices, and communication areas interlink to form a large, coherent world of knowledge. The building utilizes the synergies and potentials of work processes by connecting the spaces, which provide ample flexibility for subdivision, across floors in the horizontal and vertical direction.
The compact cube opens to the campus and to the city through two deeply incised atria, which are enclosed by a staggered, cantilevered arrangement of the upper floors. Daylight filters through the glass ceilings of the atria into the center of the building. Various plant species from the neighboring Odenwald region, including trees up to nine meters tall, are incorporated into the building complete with their soil to transform the atria into recreational spaces. The louver structure placed in front of the glazed façade is cut open in front of the atria to offer glimpses into the interiors. Merck uses a ground-floor demonstration lab, the Technikum, to provide insights into its research work.
The open-plan layout of the upper stories combines laboratories and offices to create a coherent workspace. Laboratory areas are located opposite each other on two outer sides of the building. The world of knowledge unfolds in-between, including office space and shared communication areas for professional and informal exchange between employees. Glazed walls open the new build inwardly and outwardly to establish sightlines between all work areas, but also across the surrounding campus. The interiors use a subdued color scheme to instill a comfortable atmosphere. Colored glass walls emphasize the laboratory areas.
Projecting floor slabs on the south-facing facade and recessed terraces on its northern counterpart provide solar shading for the interiors on the individual levels in concert with external louvers made of bright perforated metal. Their spacing and orientation aligns with the sun path, providing complete shading for the building. Rooftop photovoltaic systems generate electricity, while the greenery converts carbon dioxide to oxygen and absorbs particulate matter from the ambient air.
The Life Science Advanced Research Center marks a major step towards a central research and development campus at the Merck Group headquarters. It strengthens the significance of Darmstadt as a location for life science technologies.
- Year
- 2026
- Client
- Merck KGaA
- Team
- Marcus Fissan, Nora Graw, Susanne Stier, Marta Arce-González, Mark Böhmer, Jonathan Böttger, Niels Buring, Yu-Pin Chiu, Seda Dalyan, Daniela D’Amato, Weronika Debska, Martin Erdinger, Jesus Escudero Gongora, Oliver Franke, Andreas Fuchs, Julia Fuchs, Frank Gebler, Lars Gilz, Sergio Gonzalez Casillas, Martin Henn, Luka Herr, Katrin Jacobs, Anja Koch, Thomas von Küstenfeld, Anna Marshallsea, Axel Mierisch, Armin Nemati, Michael Sadomskyj, Thomas Schmidt, Ine Spaar, Jonas Stevens, Marc Teufel
- Outdoor facilities and indoor greening
- Aplantis GmbH
- Structural engineer, Façade, Building physics and acoustics
- B+G Ingenieure Bollinger und Grohmann GmbH
- Building services
- Winter Beratende Ingenieure für Gebäudetechnik GmbH
- Fire protection
- Tichelmann & Barillas Ingenieurgesellschaft mbH
- Structural dynamics
- Baudynamik Heiland & Mistler GmbH
- Laboratory planning
- Eurolabors AG
- Logistics planning
- Scherr+Klimke AG
- Light planning
- Lumen3 GbR
- Process planning
- io-consultants GmbH & Co. KG













