Westlake University
Westlake University, established in 2018, is a new type of research university, a first in the history of modern China. It is both supported by public and private funding and a vanguard in the reform of the higher education system in China. It is striving to cultivate top talent, to make breakthroughs in basic research and innovation in cutting-edge technologies, and to foster human development through science and technology. Located in the west of Hangzhou, the campus houses state of the art academic facilities, laboratories, offices, sports facilities, canteens, and housing for an international body of students and faculty.
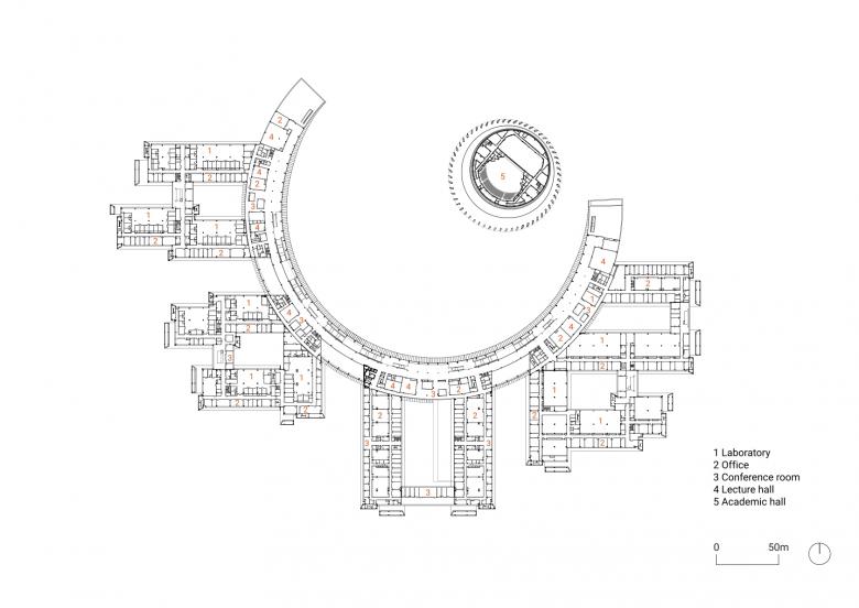
The design for the Westlake campus defines the site as a series of concentric rings that organize the campus both physically and conceptually: the Academic Core, the Water Loop, and the Living Loop.
The School of Science, the School of Engineering, the School of Life Sciences, and the School of Medicine are each housed in separate buildings. All of these buildings feature a modular, barshaped design and share the same distinctive precast concrete frame, while each façade is uniquely detailed with colorful accents and custom patterns. Bridges connecting the bars create a series of courtyards. The buildings are interlocked with the circular Academic Loop to promote connection and interdisciplinary exchange.
The intersections of the Loop and the institute buildings are where the shared spaces are located: on the ground floor, laboratories are available to students and researchers from various disciplines, while the upper floors contain auditoriums, seminar and meeting rooms as well as more informal areas such as cafés and exhibition spaces.
The Academic Loop is the dense intellectual and social core of the university. The dynamic, tripleheight space offers panoramic vistas through and into the buildings it connects. The design deliberately leaves the circular arc incomplete – evoking a sense of openness and possibility for future development.
At the center of the loop is the University’s central park—a beautiful garden for retreat, contemplation and socialization. Set amidst the garden is the Academic Hall, a large auditorium that serves as the formal venue for graduations and academic ceremonies, and regularly transforms into a lively space for concerts and cultural occasions.
The campus is encircled by a tranquil waterway. Twelve bridges connect the campus to the verdant Living Loop where freestanding residential buildings for students and faculty are located. Surrounded by shops, canteens, and sports facilities, the outer ring is a vibrant hub of private and social life.
The design of the campus is conceived from the center as a gravitational core. Rather than prioritizing short routes, it encourages and guides movement through the rings – each with its own character – offering diverse experiences, opportunities for inspiration, and vibrant exchange. A place where serendipitous encounters spark new ideas and ways of thinking.
- Year
- 2025
- Client
- angzhou Municipal Command Center for the Promotion of Westlake University Project Construction; Westlake-Universität
- Team
- Hans Funk, Georg Pichler, Yuchen Wang, Martin Henn, Leander Adrian, Lida Alibegovic, Phyllis Buschmeyer, Anna Cwik, Daniel da Rocha, Martina Fabre, Sahra Gehrke, Denise Gellinger, Tongtong Gong, Wei Guo, Katrin Jacobs, Rachna Kothari, Paul Langley, Peter Lee, Yuanhao Li, Sha Liao, Tu Ba Hoang Ly, Ayk Martirosyan, Janine Parvis, Jekaterina Porohina, Katrin Schiffelholz, Clemens Schiffer, Mostafa Seleem, Andre Serpa, Yuekang Shu, Kathrin Stamm, Tiffany Taraska, Yaxi Yang, Zhe Zhang, Jingyi Zhou
- Local Design Institute (LDI)
- UAD – The Architectural Design & Research Institute of Zhejiang University Co. Ltd.
- Lighting consultant
- RDesign International
- Landscape consultant
- WES LandschaftsArchitektur
- Construction company
- Shanghai Construction Group




































