Médanos Patagonia
Médanos Patagonia es un nuevo complejo de turismo ecológico cuyo diseño ha implementado ideas y estrategias innovadoras que están surgiendo en el debate internacional sobre la necesidad de reajustar las relaciones entre los sistemas económicos, sociales y medioambientales.
Aunque la Patagonia evoca imágenes de inmensos glaciares estrellándose, este vasto territorio se compone de muchos diversos paisajes. Médanos Patagonia se encuentra en la Bahía de San Antonio, en una reserva marina protegida ubicada entre la municipalidad de San Antonio Oeste y el balneario de Las Grutas. Mirando hacia el oeste se goza de las vistas del paisaje árido de la meseta patagónica y hacía el este de las aguas cristalinas del Golfo San Matías.
El turismo es una fuente importante de ingresos para la comunidad. Sin embargo, la concentración de visitantes durante la temporada alta de mediados de diciembre hasta febrero está creando una enorme presión sobre este ecosistema único y vulnerable. Médanos Patagonia tiene la intención de extender la temporada turística a lo largo de todo el año aprovechando las distintas ofertas de avisaje de aves, ballenas, lobos marinos y otras especies.
Efectivamente Médanos Patagonia es la superimposición de dos proyectos: un proyecto de arquitectura basado en la construcción sostenible y un proyecto de ecoturismo basado en la conservación. Estos proyectos se reúnen en una reserva marina protegida sobre la costa noreste de la Patagonia y ofrece un programa integral que promueve la conservación del medioambiente, así como la creación de oportunidades para el crecimiento sostenible y el desarrollo económico de la comunidad local.
El nombre del proyecto -Médanos Patagonia- se refiere a las dunas que se elevan por encima de las playas. La conservación de su vegetación es fundamental para el equilibrio ecológico de la costa debido a que las plantas que prosperan en este paisaje extremadamente árido se arraigan profundamente en la arena y su eliminación significaría la destrucción de las dunas por los fuertes vientos.
Estas antiguas construcciones naturales sirven como un símbolo para los planteamientos generales del proyecto, los cuales responden a las condiciones singulares de este lugar, de su paisaje y su clima y reflejan las ideas de los cuatro equipos de arquitectos que trabajan en el proyecto. Al tomar en cuenta los métodos de construcción locales y materiales, según los casos y la incorporación de innovaciones y tecnologías viables, el proyecto arquitectónico también contribuye al desarrollo de una industria de la construcción más sostenible en la región.
Una consideración básica fue la necesidad de un bajo impacto sobre la topografía. Para conservar la vegetación y la topografía, en lugar de un gran volumen macizo, el proyecto consta de pequeñas cabañas de baja altura construidas sobre plataformas elevadas sobre pilotes. Otra consideración importante fue la optimización del uso del agua. Esta árida zona no cuenta con cursos de agua dulce superficiales o aguas subterráneas. Por lo tanto, el reciclaje del agua y la optimización de su uso es una parte fundamental del proyecto arquitectónico.
Finalmente, los fuertes vientos y temperaturas extremas son abordadas por estrategias de baja tecnología y también por sistemas de bajo consumo energético.
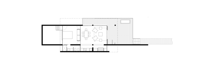
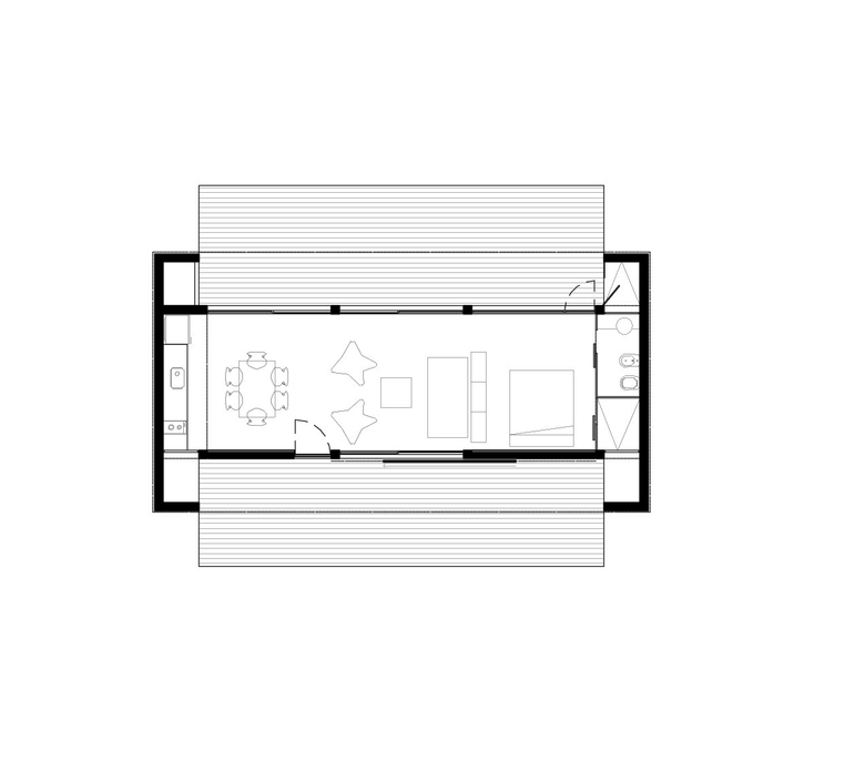
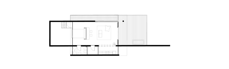
De las seis casas construidas, tres de ellas corresponden a una misma tipología, singularizadas por un muro sobre la fachada sur que se extiende para proteger el deck de los fuertes vientos que vienen de esta orientación. Las tres varían ligeramente en superficie y distribución.
Las otras tres casas son diferentes, cada una con sus particularidades, pero todas priorizan las vistas sobre el mar y mantienen un lenguaje y materiales comunes a todas las unidades.
- Year
- 2017

















