The Courthouse

Mitre 2801-2899, S2001SFE Rosario, Argentina

La profunda trasformación del sistema de enjuiciamiento penal de Santa Fe tiene su símbolo más explícito en los edificios proyectados como Centros de Justicia Penal. En ellos, predominan el hormigón y los cristales, que reproducen la estabilidad y transparencia que pretende instalar el nuevo modelo pues, con la reforma, se busca profundizar la independencia del poder judicial, y el control republicano de sus actos, lo que prácticamente sólo es posible a través de las audiencias públicas. Su diseño reproduce la imparcialidad de los jueces y la igualdad de las partes, que son el eje del nuevo sistema acusatorio y adversarial.

El nuevo Centro de Justicia Penal, está ubicado en el lugar donde funcionaba uno de los edificios más significativos de la salud pública, “el viejo HECA”. Allí se ha construido uno de los cinco centros regionales de referencia de la nueva Justicia Penal de la Provincia de Santa Fe. La intervención se destaca por la transformación urbanística en el sector generando con las fachadas urbanas sobre las calles Sarmiento y Virasoro una nueva plaza como continuidad de la que se encuentra sobre la calle Rueda, recalificando su entorno y proponiendo una reconversión productiva para el sector.

Esta concepción del nuevo sistema penal, se resuelve con un único edificio de sólida identidad, ligeramente elevado, que utiliza la plaza cívica para su principal acceso público. Tanto esta plaza como los patios interiores del edificio, permiten materializar el espíritu de transparencia y visibilidad.

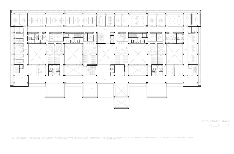
El proyecto se plantea como un sistema de módulos repetitivos articulado por patios, que mantienen su estructura y sus fachadas independientemente de la función que tengan. Estas condiciones permiten que el edificio cumpla con las demandas funcionales actuales y tenga la capacidad de adaptarse a cambios futuros sin tener que realizar ni cambios estructurales ni de fachada. Su flexibilidad estructural y funcional admite de un modo simple la adaptación a futuros requerimientos de los operadores y de la comunidad, dando rápida respuesta y manteniéndose siempre actualizado.

Es importante también destacar la importancia de la separación de las circulaciones tanto horizontales como verticales de los distintos usuarios del edificio. Es por eso que planteamos circuitos, tránsito, ingreso y egreso de público, distinto al de los imputados, y al de los jueces, encontrándose todos únicamente en las salas de los juzgados.

Por último, el lenguaje arquitectónico del edificio expresado en el hormigón armado visto y grandes áreas acristaladas representa por un lado la estabilidad del sistema judicial así como la transparencia de la forma que esta se desarrolla.

Year
2017
Team
Mario Corea, Francisco Quijano, Marcelo Tironi, Andrea Sabesinsky, Franco Allseri, Franco Bechls, Gabriel Makier, Bruno Bechls, Daniel Gutiérrez, Alfredo Aguerri, Esteban Arriola, Ezequiel Clivio, Alejandro Ferranini, Raul Utges

Other Projects by Mario Corea Arquitectura 

C.M. Plastic Surgery Clinic
Barcelona, Spain
Restoration & Refurbishment of Grassot 10-12
Barcelona, Spain
Mateu Orfila General Hospital
Mahón, Menorca, Spain
Olympic Baseball Stadium for Barcelona 1992 Summer Games
Hospitalet de Llobregat, Spain
Virolet Nursey School
Badalona, Spain