Zurich Highlands Grammar School
Wetzikon, Switzerland
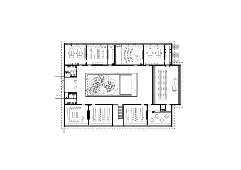
Der Kleine Spezialtrakt der Kantonsschule Zürcher Oberland ist Bestandteil der ersten Etappe der Schulanlage von Max Ziegler aus dem Jahre 1955. Zusammen mit dem südlichen Haupttrakt, der Mensa und der ersten Turnhalle ordnen sich die vier Bauvolumen um einen grosszügigen Pausenplatz mit Treppenanlage, Brunnen und gedeckter Passerelle, womit bereits eine funktionierende Schulanlage entstanden war.
Gegenüber den neuen Herausforderung als robust erwiesen, haben sich die bestehenden Grundrisse und die einfache Baustruktur des kleinen Spezialtraktes. So konnte mit relativ wenigen strukturellen Eingriffen das gesamte Raumprogramm umgesetzt werden.
Mit der Gesamtsanierung einher ging auch eine Verdichtgung nach innen, die sich vor allem in der räumlichen Optimierung des Untergeschosses zeigt. Ein grosser Raum für den Computerunterricht konnte im ehemaligen Gesteinskeller ebenso eingerichtet werden wie zwei neue Schlagzeugräume sowie Technikräume in den früheren Zivilschutzräumen. Ein neuer Zugang mit Windfang im Süden erschliesst das Untergeschoss schwellenlos und bildet zusammen mit dem neuen Aufzug ein behindertengerechtes Erschliessungssystem über den gesamten Trakt.
Das schulintern gesetzte aber nicht selbstverständliche Nebeneinander der Räume für Musik und der Räume für Geographie verlangten einen maximalen baulichen Schallschutz, deren Umsetzung sich am fertigen Bauwerk nur noch an den schweren Türen und den tiefen Leibungen erahnen lässt. Tatsächlich aber führten diese sehr hohen Schallschutzanforderungen zum teilweisen Fensterersatz, zu Doppelböden und Doppelwänden sowie verlangten generell nach einer sorgfältigen Ausführung der Details.
Der heute denkmalgeschützte Spezialtrakt hatte über die Jahre schon einige pragmatische Veränderungen und Einbauten erfahren, die im Rahmen der Gesamtsanierung wieder ursprünglichen Gestaltungsgrundsätzen weichen mussten. Das Beleuchtungskonzept mit Deckenbandleuchten konnte in allen Korridoren erneuert werden und in den Klassenzimmern und dem Singsaal wurden wieder runde Deckenleuchten entsprechend dem ursprünglichen Zustand eingesetzt. Eine bedeutende spezifische Qualität haben die variantenreich gemusterten Kunststeinbeläge, dessen Pflege und Erhalt sowie deren Weiterentwicklung in den neuen Erschliessungsbereichen zur gestalterischen Einheit der gesamten Schulanlage beitragen.
Speziell dem Original nachgebaute, brandschutztechnisch und ergonomisch aber aktualisierte Drückerbeschläge zieren heute alle Türen und zeigen auch im Detail den Willen, die Besonderheiten der spezifischen Baugeschichte zu pflegen.
Der zentrale Singsaal ist nebst der Aula und der Mensa einer von drei Grossräumen der Schulanlage, die in ihrer Materialisierung in edlem Holz gekleidet sind. Die verschiedenen raumakustischen Ansprüche an einen Singsaal, an einen Vortragssaal oder an einen Konzertsaal bei geöffneter Senkwand führten zum Einsatz eichener Massivholzleisten mit Absorptionsspalt und farbiger Akustikhinterlage, die mit den neuen farbigen Vorhängen eine ganzheitliche Materialisierung anstreben. Der gesamtsanierte und organisatorisch optimierte Kleine Spezialtrakt bietet nun wieder Raum für Lehre, Räume für Klänge und Raumfolgen für menschliche Kommunikation.
Auftragsart
Direktauftrag
Bauherrschaft
Bildungsdirektion Kanton Zürich
Hochbauamt Kanton Zürich
Fotograf
Mark Röthlisberger, Hochbauamt Kanton Zürich
- Architects
- Leuppi & Schafroth Architekten
- Year
- 2012













