Forschungsgebäude für Pharmazie

Saarbrücken, Germany
Photo © David Franck

Das Forschungsgebäude für die Pharmazie wird auf dem Campusgelände der Universität des Saarlandes in Saarbrücken als 3-geschossiger Solitär errichtet. Mit seiner Gebäudehöhe orientiert sich der Neubau am bestehenden Institutgebäude für Pharmazie. Dem Raumprogramm folgend wird jeder Nutzungseinheit, also jedem Institut und den Nachwuchsgruppen jeweils ein Geschoß zugeordnet. Die Grundrisse gliedern sich in vier von Westen nach Osten verlaufende Nutzungsschienen die im Wechsel mit Erschließungsbändern die Geschoßflächen zonieren. An den Nutzungsschienen bilden sich zwischen den Stützen Bereiche die als Schrank- und Installationsraum genutzt werden sollen. Drei Lufträume durchschneiden die so entstehenden flexibel nutzbaren Geschoßflächen und belichten auch innenliegende Bereiche. Durch die konsequente Zonierung der Grundrißstruktur in Erschließungs-, Versorgungs- und Nutzflächen, kann sich das Gebäude allen nachträglichen Nutzungsänderungen und -verschiebungen anpassen.

Photo © David Franck
Photo © David Franck
Photo © David Franck
Photo © David Franck
Photo © David Franck
Photo © David Franck
Photo © David Franck
Photo © David Franck
Lageplan
Drawing © SFA
Grundriss OG
Drawing © SFA
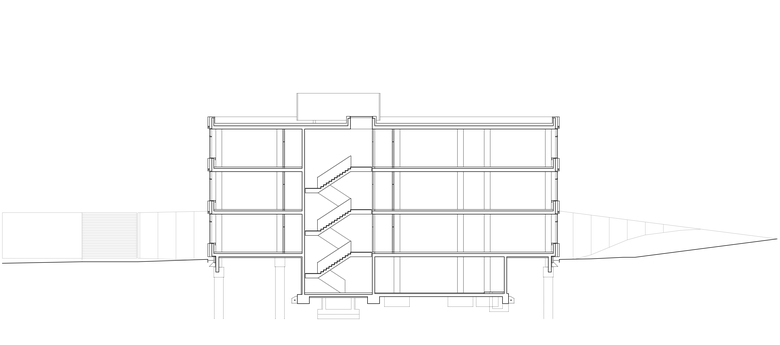
Schnitt
Drawing © SFA

Other Projects by SFA Simon Freie Architekten BDA 

Betriebshof und Städtebauliche Neuordnung Wingertsbuckel
Mannheim
Kulturzentrum Uhingen
Uhingen, Germany
Kindertagesstätte Limespark
Kindertagesstätte und Jugendzentrum
Stuttgart, Germany
Sporthalle Heumaden
Stuttgart, Germany