Sharp Residence
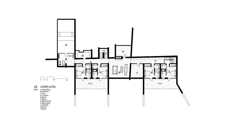
The Owner envisioned a two story house, but it seemed too imposing on the site. We presented this design as a way to respect the beautiful grassy slope and integrate with the environment. By nestling the house against the trees we created a datum line with nature. The driveway engages the garage at the uphill side allowing the house unencumbered views downslope. The basement was divided with two openings so the slope could engage the main level. We enhanced the existing stream with 3 small ponds, using excavated fill from the daylight basement.
- Year
- 2010
- Project Status
- Design






