Ersatzneubau Wohnsiedlung Frohalp
Bauherrschaft: Gemeinnützige Baugenossenschaft Heimelig Zürich
Bauvolumen: ca. 39 Mio CHF (BKP 1-5)
Programm: 79 Mietwohnungen, Gemeinschaftsraum
Baumanagement: Güntensperger Baumanagement AG, Zürich
Landschaftsarchitektur: freiraumarchitektur gmbh, Luzern
Farbgestaltung: Atelier für Architektur und Farbe, Katrin Öchslin, Zürich
Die Gemeinnützige Baugenossenschaft Heimelig plant am Entlisberg in Wollishofen den Ersatz einer Siedlung aus den 1930er Jahren. Die Siedlung soll in zwei Etappen realisiert werden.
Das langgestreckte Grundstück befindet sich an einer ruhigen, attraktiven Kretenlage mit Aussicht über die Stadt auf den Zürichsee. Ziel des Entwurfes ist es, trotz im Vergleich zur bestehenden Bebauung höherer Dichte einerseits qualitätvolle Aussenräume für die Genossenschaft zu schaffen, sowie den bestehenden Freiräumen der privaten Nachbarschaft eine neue räumliche Qualität geben.
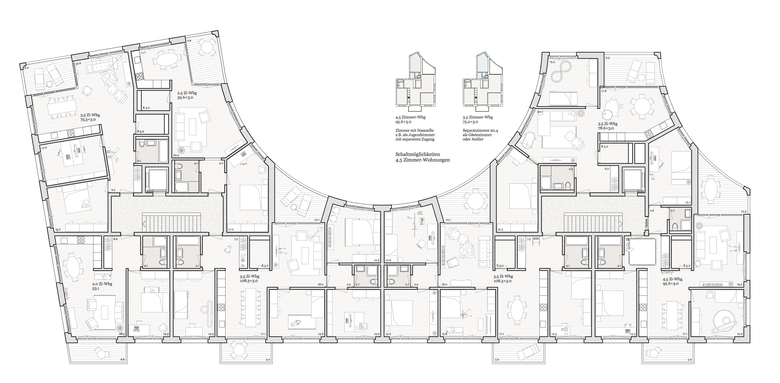
Die Neubauten werden als unterbrochene Zeile entlang der Verkehrsbaulinien vorgeschlagen. Gegen Süden wird der Siedlungsabschluss als Kopfbau ausformuliert, gegen Norden bilden die beiden Bauten an der Butzenstrasse den Eingang zur Siedlung. Richtung Westen generieren und fassen die runden Einkerbungen des Baukörpers den gut strukturierten Freiraum. Die stirnseitigen Fassaden orientieren sich an den Dimensionen der Nachbarbauten – das Bild von sechs kleinteiligen Einzelbauten wird suggeriert.
Die Zugänge zu den Neubauten erfolgen einerseits von Westen über den Freiraum, sowie andererseits über drei Treppenanlagen von der Verenastrasse. Diese führen jeweils hoch in grosszügige gedeckte Aufenthaltsbereiche. Von diesen Treffpunkten der Bewohnerschaft werden jeweils zwei Treppenhäuser, ein Waschsalon und die gemeinschaftlichen Aussenräume erschlossen, es entsteht eine hohe optische und funktionale Durchlässigkeit ausgehend vom Strassenraum, durch die Neubauten hindurch in den gemeinschaftlichen Gartenraum.
Entlang der westlichen Grundstücksgrenze läuft als «Promenade Jardin» ein halböffentlicher Weg, der behindertengerecht von der Bushaltestelle an der Butzenstrasse bis zur Lettenholzstrasse führt, und abwechslungsweise die gemeinschaftlichen Erschliessungshöfe und die dazwischenliegenden Gartenhöfe perlenkettenartig erschliesst.
Alle Wohnungen werden über ein grosszügiges Entrée mit Garderobe betreten. Der Wohn-Essraum ist zumeist als zonierte Raumfigur konzipiert. Von der ostseitigen Strassenfassade mit den Koch- und Essbereichen in Richtung Morgensonne, reicht der fliessende Raum bis an die westseitige Fassade mit dem Wohnbereich. Beide Ausrichtungen erhalten einen Aussenraum: eine eingezogene Loggia nach Westen gewährleistet einen hohen Grad an Privatheit, wohingegen ein kleiner auskragender Balkon den Strassenraum belebt und aktiviert und eine attraktive Sicht über die Stadt und ins Quartier bietet.
- Year
- 2024
- Project Status
- Under Construction
- Team
- Silvia Tofani, Simon Sutter, Andreas Zimmermann, Clemens Klötzer (Projektleitung), Xenia Heid













