Erweiterung Sammlungszentrum

Lindenmoosstrasse 1, 8910 Affoltern am Albis ZH, Switzerland
Visualization © indievisual

Bauherrschaft: Schweizerisches Nationalmuseum
vertreten durch Bundesamt für Bauten und Logistik, Bern
Bauvolumen: ca. 95 Mio. CHF
Programm: Erweiterung des Sammlungszentrums des Schweizerischen Nationalmuseums

Das Schweizerische Nationalmuseen betreibt drei Museumsstandorte, der bekannteste und grösste davon ist das Landesmuseum in Zürich. Für die Aufbereitung und Lagerung diverser Kunst- und Kulturgüter welche nicht in den aktuellen Ausstellungen gezeigt werden können, unterhält das Nationalmuseum einen zentralen Sammlungsstandort in Affoltern am Albis. Für dieses bestehende Sammlungszentrum mit den Bereichen "Konservierung und Restaurierung", "Druck und Wissensvermittlung" sowie "Depot und Objektlagerung" soll am Ortseingang von Affoltern am Albis eine Erweiterung realisiert werden.

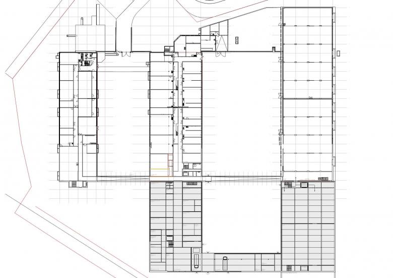
Ortsbaulich und funktional reagiert der vorgeschlagene Neubau mimikryartig auf den Ort und die Vorgaben der Bestandesbauten. Die bestehende Anlage, mit den in der Silhouette bewegten Baukörpern wird mit zwei präzise gesetzten Volumen derart ergänzt, dass mit einem abschliessenden Servicetrakt eine klosterartige Abfolge von Hofanlagen entsteht.

Ebenso wird die innere Organisation des Bestandes also die Erschliessung und die Nutzungsanordnung logisch stringent und konsequent in den Erweiterungstrakten weitergeführt. Im Erdgeschoss dockt der Neubau an den bestehenden erdgeschossigen Erschliessungskorridor an, und vermag so mit Hilfe einer neuen Lift- und Treppenanlage die Gesamtanlage zusammenzubinden. Die raumklimatischen Bedingungen der Lagerräume weisen museumsähnliche Bedingungen auf. Dabei muss auf unterschiedlichste Anforderungen der gelagerten Objekte reagiert werden.

Die Fassade schliesslich zeigt sich als eigenständige Interpretation des mit korrodierenden Stahlplatten verkleideten Bestands. Nachdem im Wettbewerb grossformatige, mit Eisenspänen versetzte Betonelemente den Ausdruck bestimmt haben, wurde dies mit im Spätherbst 2022 veröffentlichten bundesrätlichen "Bericht zur Erhöhung der Energieautonomie der Immobilien des Bundes" noch einmal überdacht. Die vertikale Gliederung der Fassaden wird weiterhin aufgenommen. Leicht zurückversetzte Fugen im selben rostenden Material wie im Bestand rhythmisieren neu die vorgesetzte Fassade aus PV-Elementen. Die Fassade soll den schützend bewahrenden Charakter der Institution mit einem zukunftsweisenden Ausdruck vermitteln.

Für das BBL ist die Planung ein BIM-Pilotprojekt. Das Objekt soll den SNBS Standard Gold, Minergie A ECO und das Label "Gutes Innenraumklima" erfüllen.

Das BBL beabsichtigt, die Planung als BIM-Pilotprojekt zu realisieren.

Visualization © indievisual
Visualization © indievisual
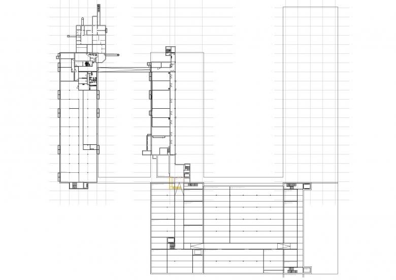
Erdgeschoss
Drawing © Zimmermann Sutter Architekten
Untergeschoss
Drawing © Zimmermann Sutter Architekten
Year
2021 - 2028
Landschaftsarchitektur
Albiez De Tomasi, Zürich
Baumanagement
JACO Jaeger Coneco, Zürich
Farbberatung
Atelier Katrin Öchslin, Zürich
Statik + Fassadenplanung
Dr. Lüchinger + Meyer, Zürich
HLKSE-Ingenieur
3-plan AG, Winterthur
Nachhaltigkeit
EK Energiekonzepte AG
Projektwettbewerb
2014, 1. Rang
Planung
2021 - 26

Other Projects by Zimmermann Sutter Architekten AG 

Wohnsiedlung Salzweg
Zürich, Switzerland
Überbauung Herzogenmühle
Schwamendingen ZH, Projektwettbewerb, 1. Rang
Ersatzneubau Kolonie 3, Sanierung Kolonie 1
Zürich-Wiedikon, Switzerland
MCS gerechtes Wohnhaus
Zürich, Projektwettbewerb nach Präqualifikation, 1. Rang , Switzerland
Wohnüberbauung Langgasse
Winterthur, Projektwettbewerb auf Einladung 2015, 1. Rang, Switzerland