Erweiterungsbau Oberlandesgericht
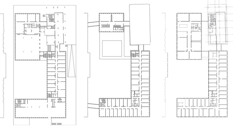
Die Erweiterungsneubauten des Oberlandesgerichts spannen eine Brücke zwischen einem Jahrhundert Baukultur - das historische Hauptgebäude wurde 1906 erstellt, das Hochhaus 1958. Unter Würdigung dieser bestehenden Gebäude wurde durch die Neubauten ein funktional wie baulich geschlossenes Ensembles geschaffen und defekte Stadtkanten ergänzt.
Material und Farbe der Kalksteinfassade orientieren sich am Bestand, doch der klare Rhythmus von schmalen, hohen Fenstern und Natursteinpaneelen formuliert den Gegenwartsbezug. So bleibt die Lesbarkeit der einzelnen Bauteile architektonisch und städtebaulich erhalten.
Der Neubau nimmt Büros, Sonderbereiche für Prüfungen, Sitzungssäle, Schulungsräume sowie die Kantine auf. Alle Richter und Mitarbeiter des OLG finden nun Raum, so dass die ausgelagerten Nebenstellen aufgelöst werden können. Im Zuge der Baumaßnahme entstanden außerdem eine Tiefgarage und ein neuer Eingang für die Bediensteten an der Kurt-Baurichter-Straße.
Der Innenhof wird durch eine Skulptur der Düsseldorf Künstlerin Hede Bühl geprägt. Für die Aussenanlagen zeichnet die Planergruppe Oberhausen verantwortlich.
- Year
- 2006
- Project Status
- Built









