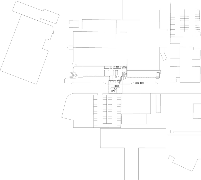
Porsche AG, Neue Pforte Werk II
Für das zukünftige Werkstor sollte eine neue Eingangssituation geplant werden, der die unterschiedlichen Verkehrsströme in Einklang bringt. Industriegebäude aus den frühen 1960 Jahren von Rolf Gutbrod prägen diesen Bereich. Angesichts der kleinen Baumasse mit überschaubaren Funktionen schlagen wir einen massiven Winkel vor, der mit gebührendem Abstand vor dem Altbau „auf dem Kopf“ steht. Mit dem langen Schenkel bildet er die weit auskragende Überdachung, auf dem kurzen Schenkel steht er. Die Präsenz dieser Figur ist so kraftvoll, dass sie als eigenständiges Element erlebt werden kann. Die inneren Funktionen der Pforte liegen im Vergleich leicht konstruiert in der Glasfuge zwischen Winkel und Altbau. Das schlichte Material Beton wird hier bewusst durch Zuschläge, die eine alabaster-weiße Färbung erreichen, aufgewertet und kann darüber eine Verbindung zu den historischen Werksgebäuden aufbauen.
Planungsbeginn - Fertigstellung
Oktober 2004 - März 2006
Hauptnutzfläche
88 m²
Bruttogrundfläche
566 m²
Bruttorauminhalt
1.328 m³
Projektkosten
1,8 Mio €
Auftraggeber
Dr. Ing. h.c. Ferdinand Porsche AG
- Año
- 2006
- Project Status
- Construido







