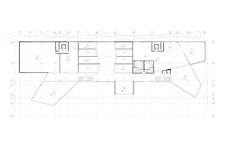
West Point - Convenience Center
The WP Convenience Center is part of a larger mix use complex of 8 towers of luxury residence. Due to its front side location within the complex, the project acts as the facade and icon to the development granting an identity and presence to the complex within the urban context. The WP Convenience Center was designed taking into consideration the elevated views of the neighboring residential towers as much as the views from the street, it was an imperative condition to treat the roof of the building as a fth facade, therefore the material chosen for the roof and the rest of the raised volume of the project is Cor Ten Steel, a material that will age graciously.
- Año
- 2018
- Cliente
- Land Development Company
- Equipo
- Oscar Gonzalez Martin, Jorge Carrillo Gutierrez, Natalia Alvaredo Lopez, Sergio Navarro Ruiz










