Einbau Kantine Stadtpolizei Amtshaus I und III
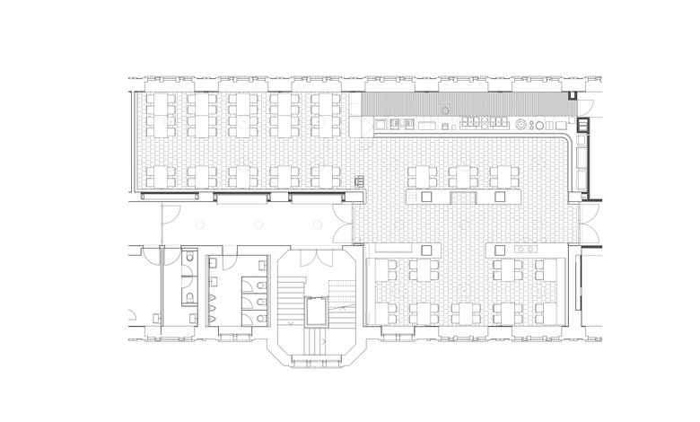
Im Rahmen der Gesamtkonzeptstudie zum Umbau des Amtshauses I ist in einem ersten Teilprojekt im 3.OG des Amtshauses III eine Kantine vorgesehen. Das Amtshaus III ist Teil des architektonischen Erbes von Gustav Gull und gebautes Fragment des Oetenbach-Projektes. Der gewählte Raum im Gebäude ist annähernd deckungsgleich mit dem ursprünglichen Speisesaal der ehemaligen Polizeikaserne und erstreckt sich als einziger über die ganze Gebäudebreite. Die architektonischen Qualitäten, namentlich die zweiseitige Belichtung, die räumliche Gliederung durch freistehende Stützen und dem darüber liegenden Stabtragwerk und die ursprüngliche Materialisierung sollen wieder hergestellt und neu interpretiert werden.
`Original und Interpretation` - Zusammen mit dem freigelegten, tektonisch gefügten Stabtragwerk, dessen weichem Spiel von Licht und Schatten, bilden die Fenster und das noch vorhandene, sorgfältig bearbeitete Holzwerk den räumlichen Parameter und die Ausgangslage für die Interpretation. Innere Oberflächen sind mit einem sandfarbenen Schlämmanstrich versehen und mit sanfter, perlmuttfarbener Schablonenmalerei gegliedert. Im Sinne einer reversiblen Überfassung gliedern entlang den Innenwänden verschieden raumhaltige, zusammenhängende Einbauschalen aus massivem Eichenholz die Raumhöhe und nehmen gleichzeitig die nutzungsspezifischen Anforderungen der Kantine auf. Nur gläserne Aufbauten vom Buffet treten aus diesem Unterbau hervor. Der Raum darüber bleibt frei. Einzig grossformatige Leuchtkörper sind im Raum abgependelt und reihen sich in den inneren Gull‘schen Horizont ein. Diese Massnahmen schaffen mit einem bescheidenen räumlichen wie farblichen Reichtum einen atmosphärischen Rahmen für ein Ess-Lokal.
- Año
- 2007
- Programm
- Einbau Kantine der Stadtpolizei Zürich
- Bauherrschaft
- Stadt Zürich, Amt für Hochbauten
- Architekten
- ARGE Nik Biedermann / Dimitri Kaden
- Baumanagement
- b+p baurealisation ag
- Rauminhalt SIA 116
- 4‘775m3
- Gebäudekosten BKP 2
- Fr. 3.5 Mio.
- Wettbewerb, selektiv
- 2005, 1. Rang
- Ausführung
- 2006-2007





