Gemeindehaus Gretzenbach

Gretzenbach (SO), Switzerland
Foto © Ralph Feiner

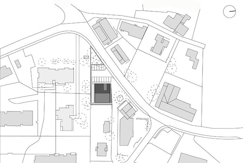
Das neue Gemeindehaus ist entsprechend der massgeblichen Geometrie der Grundstücksparzelle ausgerichtet. Dadurch entsteht zur Strasse hin eine Übereckstellung, welche die besondere öffentliche Bedeutung des Gebäudes auf einfache Weise verdeutlicht. Gleichzeitig entstehen zwei grundsätzlich verschiedene Aussenräume. Sie werden durch die Setzung des Gebäudes und die Ausrichtung des Giebels hierarchisch in einen Gemeinde- und einen Parkplatz gegliedert und erhalten entsprechend eine Haupt- und Nebenfassade. Der Gemeindeplatz, aufgespannt zwischen Gemeindehaus und Raiffeisenkasse dient nicht nur als Hauptzugang, sondern ist auch ein bescheidener öffentlicher Platz geworden.

Den restriktiven Auflagen der Kernzone wird durch Reduktion und Abstraktion von traditionellen Details, motivischen Entfremdungen sowie durch plastische Verformung und Bearbeitung des "reinen" Gebäudekörpers entsprochen. Diese Massnahmen reflektieren auf der kleinmassstäblichen Ebene graduell immer noch die unmittelbar vertraute Umgebung, ermöglichen aber zudem durch das kontrastreiche Spiel von Licht und Schatten, die besondere plastische Qualität des Gebäudekörpers wahrzunehmen.

Foto © Ralph Feiner
Foto © Ralph Feiner
Foto © Ralph Feiner
Foto © Ralph Feiner
Foto © Ralph Feiner
Foto © Ralph Feiner
Foto © Ralph Feiner
Año
2004
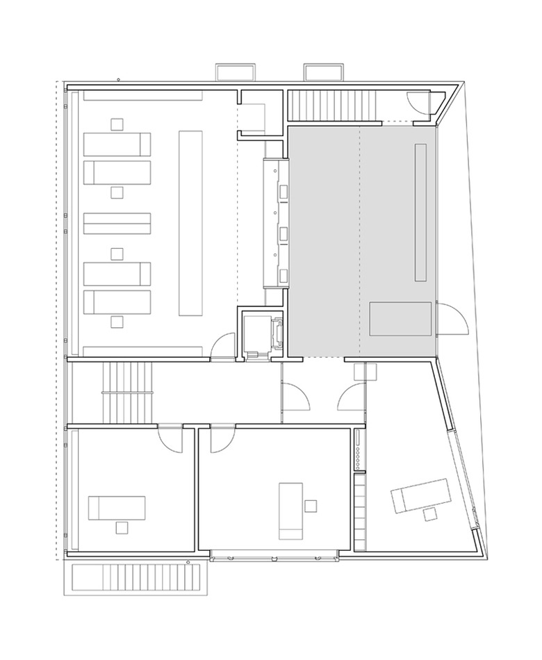
Programm
Neubau Gemeindeverwaltung
Bauherrschaft
Einwohnergemeinde Gretzenbach
Architekten
Nik Biedermann mit Martin Bühler, Zürich
Bauleitung
Marcel Eichenberger Architekt, Küttigen
Rauminhalt SIA 116
3’605m3
Gebäudekosten BKP 1-9
Fr. 2.7 Mio.
Studienauftrag: 2000
1. Rang, Ausgeführt: 2001-04
Preis
Auszeichnung ausgewählter Bauten im Kanton Solothurn 2004

Otros proyectos de nik biedermann architekten gmbh 

Umbau und Instandsetzung "Haus zum Kiel"
Zürich (ZH), Switzerland
Umbau und Instandsetzung Schulanlage Gubel A
Zürich (ZH), Switzerland
Instandsetzung und Umnutzung Gartenpavillon Stockargut
Zürich (ZH), Switzerland
Instandsetzung Schulhaus Bläsi
Zürich (ZH), Switzerland
Umbau und Erweiterung Kurtheater Baden
Baden (AG), Switzerland