Königstadt-Quartier
Berlin, Alemania
Das neue Wohngebäude Königstadt-Quartier befindet sich in Berlin-Friedrichshain in zentraler Lage zwischen dem Volkspark Friedrichshain und dem Alexanderplatz. Mit seiner zeitlosen und ruhigen Architektur, den unterschiedlichen Traufhöhen, passt sich das Gebäude in die urbane Atmosphäre und einfachen Riegelstrukturen rund um die Mollstraße ein und führt die typische Blockrandstruktur weiter, indem es die Flucht der vorhandenen Bebauung aufnimmt.
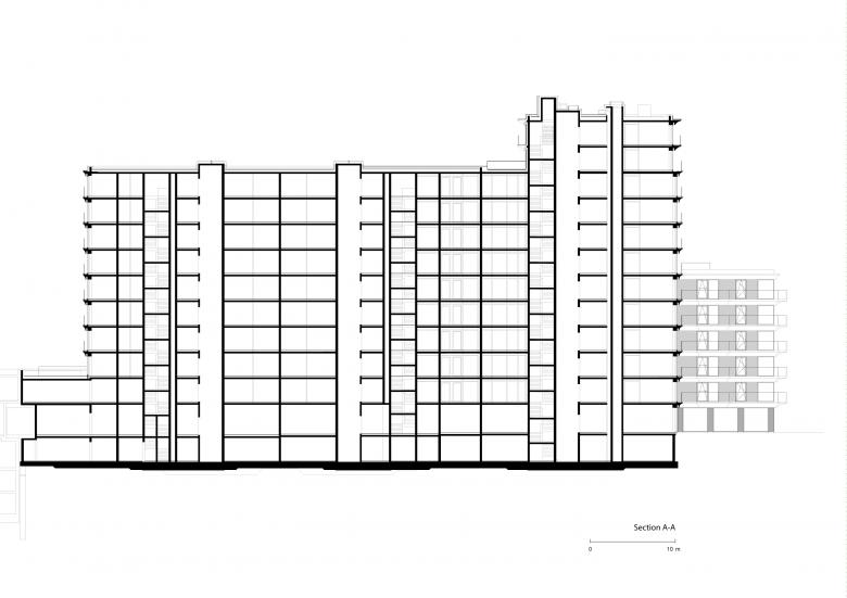
Der Wohnkomplex besteht aus einem zehngeschossigen Riegel, dessen Kopf mit zwei weiteren Geschossen turmartig markiert wird. Ein sechsgeschossiger, versetzt angefügter Vorbau führt die Traufhöhe auf das historische Berliner Maß zurück und flankiert an der Barnimstraße die Zufahrt zu einem gemeinsamen Innenhof. Am anderen Ende binden das Erd- und das Obergeschoss den Komplex an den Nachbar an. Außer den Gewerbeeinheiten im Erdgeschoss entstanden hier ausschließlich Wohnungen.
Ungeachtet seiner großen Dimensionen präsentiert sich das Gebäude leicht und offen durch die raumhohen, großzügigen Fensterfronten und einem offen gestalteten, flächig verglasten Erdgeschoss. Die aus gefärbtem Architekturbeton aufwendig gestalteten, voutenartigen Gesimsbänder bilden eine fließende Linie mit den Balkonen, Loggien und bodentiefen Fenstern und verleihen der Fassadenmatrix zusätzlich Plastizität und Spannung. Unterstützt wird die horizontale Betonung durch die schmalen durchgehenden Brüstungen, die dem Volumen gemeinsam mit dem Rhythmus transparenter und opaker Glaselemente einen unverwechselbaren Charakter verleihen.
Die Hoffläche der Wohnanlage wurde mit altersübergreifenden Kinderspielflächen ausgestattet, die in einer offenen, baumbewachsenen und rasenbegrünten Fläche von über 600 m² in einzelne Bereiche aufgeteilt wird.
Eine eingeschossige Tiefgarage im Untergeschoss bietet Raum für 41 PKW-Stellplätze, einige davon barrierefrei. Insgesamt wurden für das Gebäude auch 240 Stellplätze für Fahrräder vorgesehen, die sich in den Fahrradräumen im Unter- und Erdgeschoss und oder in den Freianlagen im Hof befinden.
- Arquitectos
- TCHOBAN VOSS Architekten
- Año
- 2021
- Cliente
- Bauart Gruppe, Berlin
- Equipo
- Team: Johannes Beese; Valeria Kashirina; Eimear O’Gorman; Fabiana Pedretti; Daniele Ricci; Ingo Schwarzweller; Ramona Schwarzweller; Evgenia Sulaberidze; Nancy Wendland, Architekt: Sergei Tchoban, Assoziierter Partner und Projektleiter: Frederik-Sebastian Scholz
- Tragwerksplanung
- Mehlhorn und Vier Ingenieurgesellschaft mbH, Kassel
- Gebäudeausrüstung
- Plan B - Beratende Ingenieure GmbH, Berlin
- Landschaftarchitektur
- Hanke & Partner Landschaftsarchitekten, Berlin
- Brandschutz
- Upmeyer und Partner Pruefingenieure fuer Brandschutz, Stralsund
- Ausbau
- Lindner Group KG, Berlin
- Architekturbeton
- GBJ Geithner Betonmanufaktur Joachimsthal GmbH, Ziethen
- Metallkonstruktion, Fassade
- Haskamp Group, Edewecht














