Wettkampfsporthalle am Platz der Deutschen Einheit

Platz der Deutschen Einheit – Bleichstraße 12, 65183 Wiesbaden, Alemania
Foto © Stefan Müller

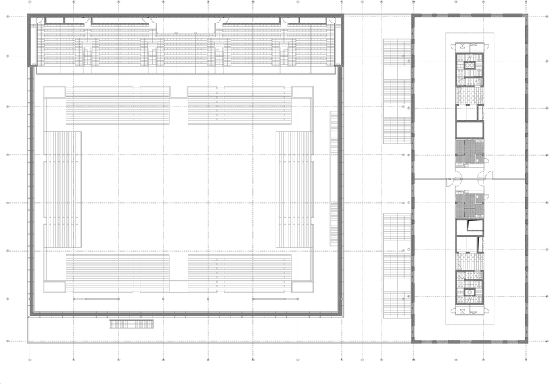
Mit der Neuordnung des Quartiers wird die Intention verfolgt, die jeweiligen Identitäten und Qualitäten der umliegenden Räume herauszuarbeiten und städtebaulich zu stärken. Die programmatischen Vorgaben bedingen eine hybride dreiteilige Baukörperkonstellation, bestehend aus Wettkampfsporthalle, Einzelhandelsflächen und einem Bürohaus, deren spezifische Ausformulierungen sich aus stadträumlichen Abhängigkeiten und funktionalen Zusammenhängen ergeben.

Die neue Sporthalle ist sowohl inhaltlich als auch städtebaulich in engem Zusammenhang mit der bestehenden Elly-Heuss-Schule zu betrachten, welche nun in die erste Reihe tritt und mit ihrem kräftigen Kopf- und Eingangsgebäude ein stadträumlich prägendes Element des Platzes der Deutschen Einheit bildet. Die geplante Ausbildung als Wettkampfstätte für sportliche Veranstaltungen mit entsprechenden Tribünenanlagen erfordert eine räumliche Verknüpfung mit dem Platz und eine über das übliche Maß hinausgehende Ausstrahlung des Sportgeschehens in diesen neuen Stadtraum hinein. Dies wird mit einer großzügigen Öffnung der Sporthalle zum Platz der Deutschen Einheit hin erreicht. Einzelhandelsflächen und Gastronomieeinrichtungen wie Cafés und Restaurants befinden sich in der Erdgeschossebene.

Wettbewerb

Begrenzt offener Realisierungswettbewerb mit städtebaulichem Ideenteil 2008 - 
1. Preis

BGF

20.500 m²

BRI

106.300 m³

LPH 2-5

Foto © Stefan Müller
Foto © Stefan Müller
Foto © Stefan Müller
Foto © Stefan Müller
Foto © Stefan Müller
Foto © Stefan Müller
Año
2014
Cliente
Landeshauptstadt Wiesbaden
Landschaftsarchitekt
Weidinger Landschaftsarchitekten
Projektentwicklung und Generalplanung
Firmengruppe Max Bögl
Tragwerksplanung
R&P RUFFERT Ingenieurgesellschaft mbH Beratende Ingenieure

Otros proyectos de SCHEEL WETZEL ARCHITEKTEN 

Sportpark Freiham
München, Alemania
Feuerwache Tuttlingen
Tuttlingen, Alemania
Blindeninstitutsstiftung Regensburg
Regensburg, Alemania
NS-Dokumentationszentrum München
München, Alemania
Haus Rotwang
Berlin, Alemania