Boutikovsky lane

Butikovsky lane, 5, Moscow, Russia
Foto © V. Dolzhansky

For his year this dwelling house was on top of demand among local wealthy public and so it was sold out in no time…

Foto © V. Dolzhansky
Foto © V. Dolzhansky
Foto © V. Dolzhansky
Foto © V. Dolzhansky
Foto © S. Skuratov
Foto © S. Skuratov
Foto © S. Skuratov
Site plan
Dibujo © Sergey Skuratov Architects
Level 0
Dibujo © Sergey Skuratov Architects
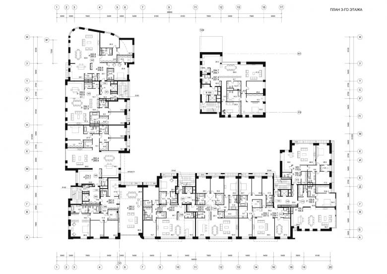
Level 2
Dibujo © Sergey Skuratov Architects
Sections
Dibujo © Sergey Skuratov Architects
Elevations
Dibujo © Sergey Skuratov Architects
Año
2003
Project Status
Construido
Cliente
Rose group
Object name
Residential complex in Butikovsky lane
Project organisation
‘Sergey Skuratov Architects’ ltd
General contractor
‘Starteks Stoun’ ltd
Authors
S. Skuratov (Chief Architect), M. Kelman (Chief Constructor), M. Shustova (Chief Engineer)
Architects
S. Skuratov (Lead Author), V. Zherebtsov, M. Peleeva, A. Sharudenko, E. Anvayer, A. Medvedev, M. Serebryanikov, K. Khodnev
Project stages
architectural concept, architectural project, design drawings, architetural supervision
Project
2000 – 2002
Construction
2001 – 2003
Interiors
2003 – 2004
Total object area
17 643 m²
overground
13 312 m²
underground
4 331 m²
Construction volume
72 407 m³
Site area
0,48 hectares
Construction area
2 833 m²
Number of floors
5-6
Number of flats
39
Number of car places in the undergound parking
97

Otros proyectos de Sergey Skuratov Architects 

Private House in Troitsk
Moscow Region, Russia
Mednyii 3-14
Moscow, Russia
Zilart
Moscow, Russia
Multifunctional high-rise in Moscow City
Moscow, Russia
Art House
Moscow, Russia