Leo & Alex – Bornitzstraße

Bornitzstraße 49-51, 67-71, 10365 Berlin, Alemania
Straßenansicht von der Bornitzstraße vom Gebäude ''LEO''
Foto © Klemens Renner

Die beiden Büroneubauten LEO & ALEX entstanden auf zwei unbebauten Grundstücken an der Bornitzstraße im Berliner Bezirk Lichtenberg. Namenspaten der Straße wie auch beider Gebäude des Projektes sind der Arzt und Autor Leopold Bornitz sowie sein Bruder, der Gemeindepfarrer Alexander Bornitz. Zwischen den beiden Volumen befinden sich die gemeinnützigen Lichtenberger Werkstätten, die zur Stiftung Rehabilitationszentrum Berlin-Ost gehören. Im Westen wird das Bürogebäude „LEO“ durch das denkmalgeschützte, ehemalige Werkstattgebäude der Konsumgenossenschaft Berlin begrenzt, erbaut 1926-27 von Otto Wettstein. Rückwärtig befindet sich ein weiteres Baudenkmal, die Industriebauten Josef-Orlopp-Straße 32/54 und östlich von „ALEX“ das 1997 erbaute Bürogebäude „The Wave“.

Die Kubatur des Gebäudes ,,LEO‘‘ besteht aus drei querstehenden, dreigeschossigen Querriegeln, die ein siebengeschossiger Gebäudeteil in Längsrichtung verbindet. Drei unabhängige Treppenhäuser verbinden die verschiedenen Ebenen und sind von den Haupteingangsbereichen im Erdgeschoss zu erreichen. Jedem Treppenhaus angegliedert ist eine Aufzugsanlage mit zwei Aufzügen. Die Mietbereiche sind flexibel ausgelegt, wodurch sowohl eine Zellenbüroaufteilung als auch eine Open-Space-Variante möglich ist. Das Gebäude ,,ALEX‘‘ besteht aus einem siebengeschossigen Riegel, von dem drei gleichhohe Querriegel in Richtung Westen abgehen.

Zwischen den freistehenden Gebäudeteilen öffnen sich begrünte Innenhöfe. Alle Dächer sind als extensive Gründächer vorgesehen. Im Bereich der Staffelgeschosse sind zudem Dachterrassen als aufgeständerte Konstruktion angebracht, die jedoch gegenüber der Nutzungseinheit nicht stufenlos zugänglich sind. Insgesamt ergibt sich aus den zwei Gebäuden eine Brutto-Grundfläche von ca. 50.000 m².

Die Außenfassade von Gebäude ,,LEO‘‘ wird durch eine grau-beige melierte Riemchenfassade gegliedert. Die Stützen zwischen den Fensterbändern wurden als reliefierte Blechverkleidung geplant. Im Erdgeschoss wurden geschlossene Brüstungselemente als Sichtschutz vor die bodentiefen Fensterelemente sowie ein außenliegender Sonnenschutz angebracht. Bei dem Gebäude ,,ALEX‘‘ besteht die markante Fassade aus rotem Backstein. Sie knüpft architektonisch an die historische Nachbarbebauung an und ist in Kubatur, Farbigkeit und Materialität eine Referenz an den Industriestandort Lichtenberg. Die Geschosse sind durch horizontale Fensterbänder gegliedert, die stellenweise unterbrochen sind und somit der Fassade eine abwechslungsreiche Optik verleihen. Die zweigeschossigen Eingangsbereiche der beiden Gebäude sind durch eine Pfosten-Riegel-Fassade mit Vordach akzentuiert und ermöglichen durch je eine Karusselltür, die von normalen Türen flankiert wird, den Zugang zu den Bürogebäuden.

In den zwei Tiefgaragen von ,,LEO & ALEX‘‘ sind zusammen 291 PKW-Tiefgaragenstellplätzen vorhanden, von denen jeweils 10 bis 50 bei Bedarf als E-Mobility-Stellplätze genutzt werden können. Die Aufzugskerne verbinden die Tiefgarage direkt mit den sieben Büroetagen. Zusätzliche stehen in den Außenanlagen weitere 47 Parkplätze, auch zum Teil auf Elektromobilität ausgerichtet, zur Verfügung.

TCHOBAN VOSS Architekten: LEO & ALEX – Bornitzstraße, Berlin
Foto © Klemens Renner
Straßenansicht von der Bornitzstraße vom Gebäude ''LEO''
Foto © Klemens Renner
Hofansicht Gebäude vom ''LEO''
Foto © Klemens Renner
Hofansicht Gebäude vom ''LEO''
Foto © Klemens Renner
Fassadendetail Gebäude vom ''LEO''
Foto © Klemens Renner
Straßenansicht von der Bornitzstraße vom Gebäude ''ALEX''
Foto © Klemens Renner
Ansicht mit Bestand vom Gebäude ''LEO''
Foto © Klemens Renner
Hofansicht vom Gebäude ''LEO''
Foto © Klemens Renner
Hofansicht mit Eingangssituation vom Gebäude ''LEO''
Foto © Klemens Renner
Hofansicht mit Begrünung vom Gebäude ''LEO''
Foto © Klemens Renner
Straßenansicht von der Bornitzstraße vom Gebäude ''ALEX''
Foto © Klemens Renner
Hofansicht mit Begrünung vom Gebäude ''LEO''
Foto © Klemens Renner
Straßenansicht mit Eingangssituation vom Gebäude ''ALEX''
Foto © Klemens Renner
Abendansicht mit Eingangssituation vom Gebäude ''ALEX''
Foto © Klemens Renner
Eingangssituation vom Gebäude ''ALEX''
Foto © Klemens Renner
Eingangssituation vom Gebäude ''ALEX''
Foto © Klemens Renner
Eingangssituation vom Gebäude ''ALEX''
Foto © Klemens Renner
Eingangssituation vom Gebäude ''ALEX''
Foto © Klemens Renner
Eingangssituation bei Abend vom Gebäude ''ALEX''
Foto © Klemens Renner
Seitenansicht Eingangssituation vom Gebäude ''ALEX''
Foto © Klemens Renner
Seitenansicht Eingangssituation vom Gebäude ''ALEX''
Foto © Klemens Renner
Hofansicht mit Begrünung vom Gebäude ''ALEX''
Foto © Klemens Renner
Hofansicht mit Begrünung vom Gebäude ''ALEX''
Foto © Klemens Renner
Querschnitt ''ALEX''
Dibujo © TCHOBAN VOSS Architekten
Ansichten ''LEO''
Dibujo © TCHOBAN VOSS Architekten
Fassadendetail vom Gebäude ''ALEX''
Foto © Klemens Renner
Erdgeschoss ''ALEX''
Dibujo © TCHOBAN VOSS Architekten
Lageplan
Dibujo © TCHOBAN VOSS Architekten
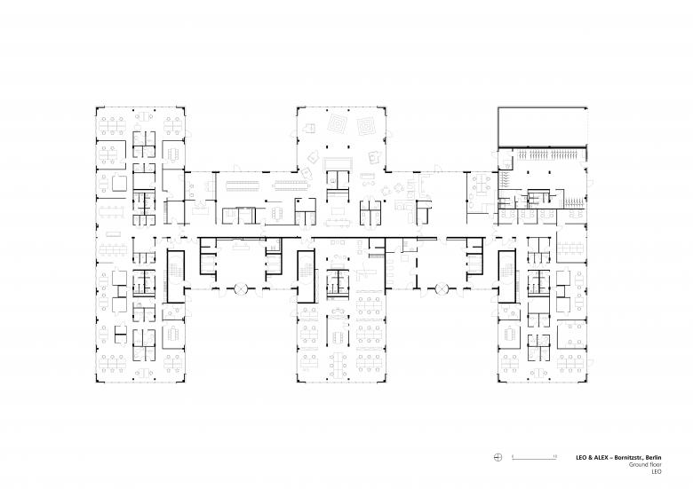
Erdgeschoss ''LEO''
Dibujo © TCHOBAN VOSS Architekten
Fassadenansicht vom Gebäude ''ALEX''
Foto © Klemens Renner
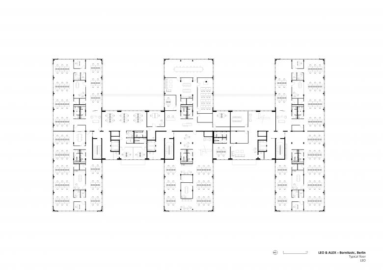
Regelgeschoss ''LEO''
Dibujo © TCHOBAN VOSS Architekten
Längsschnitt ''LEO''
Dibujo © TCHOBAN VOSS Architekten
Querschnitt ''LEO''
Dibujo © TCHOBAN VOSS Architekten
Staffelgeschoss ''LEO''
Dibujo © TCHOBAN VOSS Architekten
Regelgeschoss ''ALEX''
Dibujo © TCHOBAN VOSS Architekten
Ansichten ''ALEX''
Dibujo © TCHOBAN VOSS Architekten
Längsschnitt ''ALEX''
Dibujo © TCHOBAN VOSS Architekten
Año
2023
Cliente
Quantum AG
Equipo
Martin Krebes, Jan Frechen, Juan Durán Calero, Merle Kleinschumacher, Mareike Pagenstecher

Otros proyectos de TCHOBAN VOSS Architekten 

Rosenthaler Str. 43-45
Berlin, Alemania
Ferrum 1
Sankt Petersburg, Russia
Königstadt-Quartier
Berlin, Alemania
Landgericht Magdeburg
Magdeburg, Alemania
Expoforum
Sankt Petersburg, Russia