Schœnegarten Kurfürstenstraße
Das neu entstandene, exklusive Wohnquartier an der Ecke Kurfürstenstraße / Genthiner Straße fügt sich harmonisch in das lebendige Viertel in direkter Nähe zur City West ein. Im Projektnamen prägnant als Schnittstelle zwischen den Berliner Bezirksteilen Schöneberg und Tiergarten beschrieben, schließt der Gebäudekomplex auf einem knapp 7.200 Quadratmeter großen Grundstück die vorhandene Blockrandbebauung und damit eine jahrzehntelang bestehende Baulücke. Der natürlich gewachsene Stadtblock wird mit dem neuen Projekt in der Tradition der europäischen Stadt neu definiert. Den Nollendorfplatz erreicht man von hier aus zu Fuß, zur Einkaufsmeile Kurfürstendamm ist es eine kurze U-Bahn-Fahrt. Eine gute Anbindung lässt auch weitere Ziele in ganz Berlin schnell und unproblematisch erreichen.
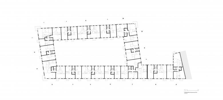
Die Grundrissform des Ensembles aus insgesamt 14 lückenlos aneinandergefügten Gebäuden bildet ein P und umschließt einen begrünten Innenhof. Sechs volle Geschosse tragen jeweils ein Staffelgeschoss. Das vielfältige urbane Flair spiegelt sich auch im Äußeren der Anlage wider. Die überwiegend verglasten, gewerblich genutzten Erdgeschosse binden die Reihe mit einer einladenden Front in den Straßenraum ein. Während die Gliederung der Obergeschosse durchgehend vertikal betont ist, sticht jedes Haus durch seine eigene Gestalt mit individuellen Details hervor, wie etwa einem eigenen Oberflächenmaterial, dessen unterschiedlicher Bearbeitung oder der Gestaltung der Balkone.
Architekturbeton und Mauerwerk sind die Ausgangsmaterialien der Fassadengestaltung und wurden je nach Gebäude unterschiedlich ausgeführt. Die rauen Strukturen einer Beton-Holzschalung wechseln sich mit glattem Sichtbeton und fein geschliffener Travertin-Optik ab. Bei der Klinkerverkleidung wurden wiederum unterschiedliche Farb- und Mustervariationen verwendet. Die Gestaltungsvielfalt der Fassaden passt perfekt in das abwechslungsreiche Straßenbild. Die Wahl der einzelnen Materialien für die facettenreichen Fassaden ist eine Referenz an das architektonische Erbe Berlins: Ziegel, Mauerwerk in Farb- und Mustervariationen verweisen auf Kirchen- und Industriebauten, kannelierter Putz auf die Gründerzeit, Sichtbeton und Glas sprechen die Sprache des heutigen Berlins. Die verputzten Fassaden im Innenhof zeigen mit Farben und Oberflächen eine ähnliche Gestaltung wie die Straßenfassaden.
Fensterfaschen und Blindfensterfelder wurden zusätzlich durch Rücksprünge, Riffelungen oder Farbakzente betont und aufgelockert. Mit unterschiedlichen Ausführungen der Balkone wird das lebendige Fassadenbild intensiviert. Glasbrüstungen wurden passend zu Betonoberflächen verwendet, individuelle Metallgeländer wurden für Mauerwerkfassaden vorgesehen.
Insgesamt entstanden hier 182 Wohnungen. Die Größe der Ein- bis Zwei-Zimmer-Wohnungen bewegt sich zwischen 46 und 146 Quadratmetern. Im Norden und Osten erhalten die Erdgeschosswohnungen Terrassenflächen mit kleinen Vorgärten aus Strauch- und Baumbepflanzungen und Spielbereichen.
In der gemeinsamen Tiefgarage gibt es 86 Stellplätze.
Das Projekt ist ein KfW-Effizienzhaus 55.
- Año
- 2022























































