Hotel Titanic

Chausseestraße 30, 10115 Berlin, Alemania
Foto © Martin Tervoort

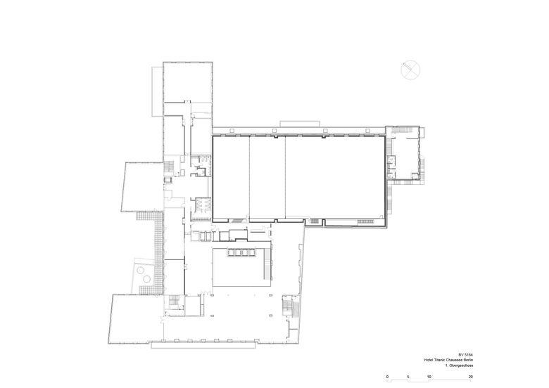
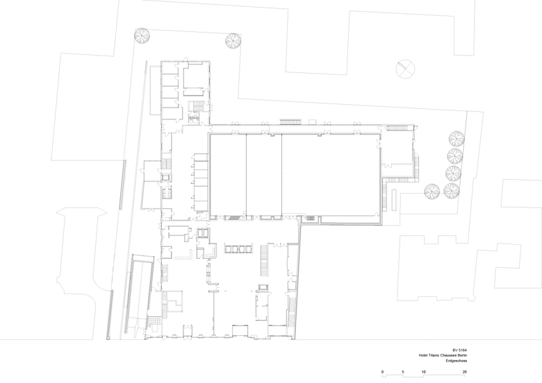
Der Neubau für das 4-Sterne-Hotel entstand in einer breiten Baulücke an der Chausseestraße in Berlin-Mitte. Mit mehreren Flügeln wächst der Bau tief in das Grundstück hinein. Das Hotel verfügt mit 389 Zimmern insgesamt über sieben überirdische und zwei weitere Tiefgeschosse. Eine markante Rückstaffelung der zwei Obergeschosse schafft gleichzeitig ein harmonisches Verhältnis mit den Nachbargebäuden.

Die strahlend-helle Fassade des Neubaus zeichnet sich durch die Verbindung von einem strengen Raster und plastischen Elementen. Sie wird durch elegant proportionierte Fensteröffnungen, flach abgeschrägte Leibungen und Dekorelemente gegliedert, so dass dadurch einzelne Geschosse ablesbar werden. Die unterschiedlich behandelten, jedoch gleichmäßig hell-beige eingefärbten Elemente aus Betonwerkstein fügen sich zu einer plastischen Gesamtoberfläche zusammen. Während das Reliefmuster der Straßenfassade einen verspielten Charakter aufweist, entscheiden sich die Architekten bei der Hofseite für ein simpleres, vertikal gegliedertes Pendant. Die geschickte Anordnung der Volumen in durchgehend hellen Farben lassen einen wohl proportionierten, nicht überladenen Eindruck im Innenhof entstehen.

Der Zugang für Gäste und Restaurantbesucher sowie zu den Veranstaltungsbereichen liegt an der Straßenseite und führt durch die ebenerdige Lobby in ein gläsern überdachtes Atrium. Das Restaurant bietet etwa 120 bis 150 Plätze. Ein flexibel teilbarer Festsaal im Erdgeschoss für bis zu 1.400 Personen mit einer Raumhöhe von 7 Metern ermöglicht Veranstaltungen von sehr unterschiedlichem Rahmen und Umfang. Der Frühstücksraum und die Konferenzzone mit mehreren Räumen und einem Business Center sind im ersten Obergeschoss untergebracht. Darüber liegen die Hotelzimmer: 14 davon sind behindertengerecht gestaltet und ausgestattet, weitere 20 sind behindertenfreundlich. Als eine Besonderheit des Hotels sei der große Wellnessbereich mit Pool, türkischem Dampfbad (Hamam) und Sauna genannt – dieser erstreckt sich über große Teile der beiden Tiefgeschosse. Dort sind außerdem Funktionsbereiche und die Tiefgarage mit 177 Stellplätzen angeordnet. Ein Verwaltungstrakt für die Administration der Titanic Resorts & Hotels in Deutschland wurde als eigener Baukörper an den Hotelbau angegliedert.

Foto © Lev Chestakov
Foto © Martin Tervoort
Foto © Martin Tervoort
Foto © Martin Tervoort
Foto © Martin Tervoort
Foto © Martin Tervoort
Dibujo © Tchoban Voss Architekten
Dibujo © Tchoban Voss Architekten
Dibujo © Tchoban Voss Architekten
Dibujo © Tchoban Voss Architekten
Año
2015
Cliente
Moonday Projektentwicklungsgesellschaft GmbH
Architekt
Sergei Tchoban, Tchoban Voss Architekten
Projektleiter
Frederik-Sebastian Scholz, Holm Dietrich
Mitarbeiter
Clemens Döhler, Frank Helms, Christoph Schröter
BGF
33.606 m²

Otros proyectos de TCHOBAN VOSS Architekten 

Rosenthaler Str. 43-45
Berlin, Alemania
Ferrum 1
Sankt Petersburg, Russia
Königstadt-Quartier
Berlin, Alemania
Landgericht Magdeburg
Magdeburg, Alemania
Expoforum
Sankt Petersburg, Russia