Gesamtrenovation Mehrfamilienhaus

Photo © Felix Huber Architekten

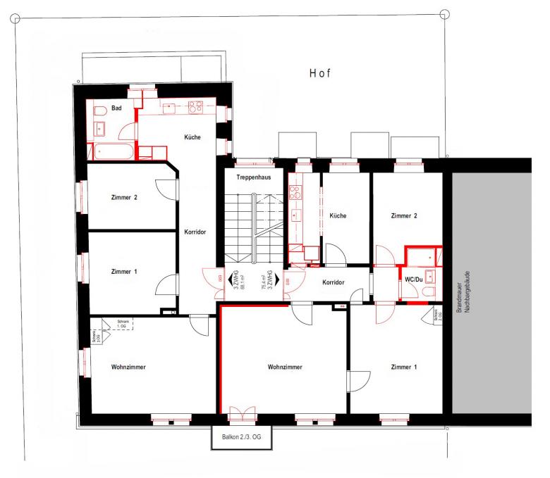
Mehrfamilienhaus aus dem späten 19. Jahrhundert.
Gesamtrenovation mit Grundrissanpassungen.
Neues Dach in Naturschiefer und neuer Dachterrasse.
Energetische sowie brandschutztechnische Sanierung.

Photo © Felix Huber Architekten
Photo © Felix Huber Architekten
Photo © Felix Huber Architekten
Photo © Felix Huber Architekten
Année
2021
Project Status
Construit

Autres projets de Felix Huber Architekten 

Renovation Alters- und Pflegezentrum
Wald ZH, Suisse
Umnutzung der Trotte zu Wohnhaus (Denkmalschutz-Objekt)
Wädenswil, Suisse
Mehrfamilienhaus Kirchgasse, Zustandsanalyse
Wohn- und Geschäftshaus
Zürich-Seefeld, Suisse
Renovation und Umbau Mehrfamilienhaus
Zürich-Seefeld, Suisse