E.ON Energy Research Center
Ort – Als erste Maßnahme des E.ON Campus der RWTH Aachen ist die Versuchshalle E.ON Energy Research Center der RWTH Aachen entstanden, die von den Instituten Energy Efficient Buildings and Indoor Climate (EBC), E.ON ERC und Power Generation and Storage Systems (PGS), E.ON ERC genutzt wird.
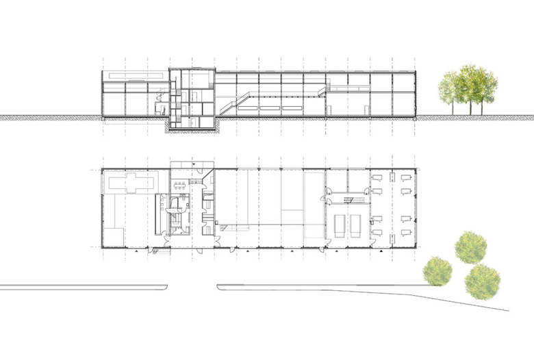
Entwurf – Der lang gestreckte eingeschossige Hallenbau von 18m x 70m x10m beinhaltet zwei Hallenbereiche von unterschiedlicher lichter Höhe verbunden durch einen dreigeschossigen Erschließungskern, der die Haustechnik und die Nebenräume für die Mitarbeiter aufnimmt. Die beidseitige fußläufige Erschließung berücksichtigt bereits das auf dem rückwärtigen Gelände vorgesehene E.ON Mainbuilding.
Konstruktion – Das Stahltragwerk mit einem Stützenraster von 5m x 18m und ca. 2m hohen Fachwerkträgern überspannt die Hallen stützenfrei. Zwischen den Trägern ist eine Technikdecke eingefügt, die die Forschungsbereiche mit den erforderlichen Medien versorgt. Das flache Dach ist aus Stahltrapezprofilen mit Folienabdichtung. Die aufgefaltete Metallhaut des zweischaligen Fassadensystems wurde eigens für das Projekt entwickelt.
Auszeichnung
Gute Bauten des BDA Aachen 2010
- Année
- 2009







