Taiwan Glass QFG
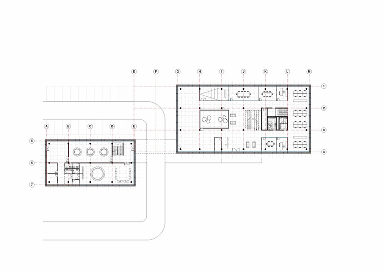
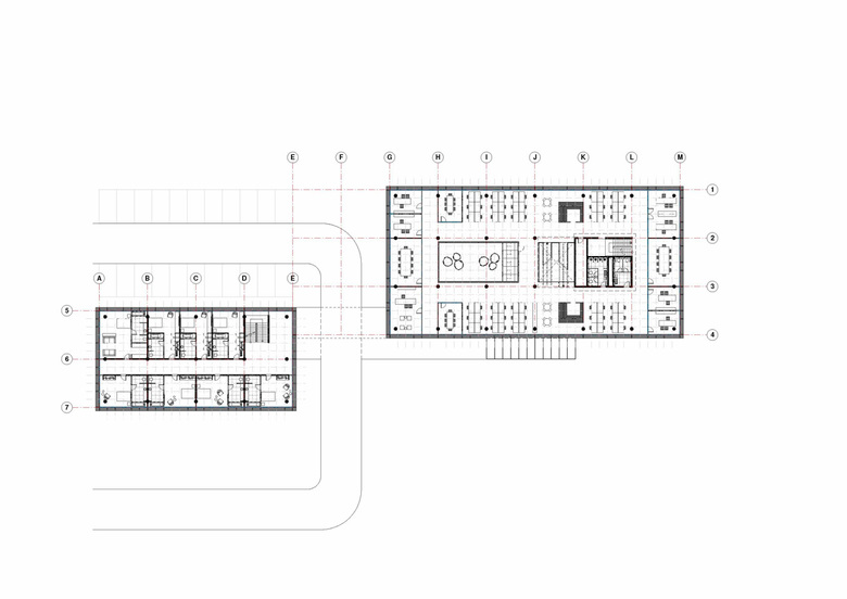
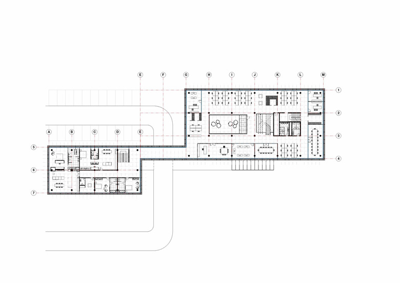
Für ihren Hauptstandort auf dem chinesischen Festland hat Taiwans größte Glasmanufaktur, Taiwan Glass ein 4.100 qm großes Bürogebäude sowie den Masterplan für ein 20.000 qm großes Areal in Qingdao, China inklusive kleinerer Gebäude wie ein Pförtnerhaus, Kantine und Pagode beauftragt. Das PHILIPP MAINZER OFFICE FOR ARCHITECTURE AND DESIGN realisierte ein dreistöckiges Gebäude für Büros, Restaurants sowie Apartments für die Manager des Unternehmens. Der generelle Grundriss separiert die Struktur in zwei Gebäude, das Apartment- und das Bürogebäude, die durch eine elegante Brücke im dritten Stockwerk verbunden sind. Dem Entwurf des ersten Gebäudes für Taiwan Glass in Fujian, China – auch von PHILIPP MAINZER entwickelt – folgend, wird auch hier Glas als Schwerpunkt eingesetzt. Als Präsentation des Hauptproduktes von Taiwan Glass, Floatglas, bewirken die verstärkte Betonstruktur und der große Glasvorhang einen besonders harmonischen Eindruck der Fassade und des Gebäudes sowie eine größtmögliche Transparenz und Nutzung von Tageslicht. Eine hochwertige Innenausstattung und eine verfeinerte Landschaftsplanung akzentuieren das neue Gelände.
- Année
- 2013
- Project Status
- En construction






















