Visitor Center, Xingxi Park
A Gate That Seduces
The city of Kunshan lies to the west of Shanghai and to the east of Lake Yangcheng. Since the 1990s, it has transformed rapidly from a 2,000-year-old town into a modern manufacturing center. The city has expanded in the process. Even on the lake shore, nine kilometers west of the central city, one can see luxury single-family home developments. It was July 2010 when the head of Kunshan City Construction, Investment and Development Co., Ltd. invited me to the Lake. He explained his plan to create a series of public leisure spaces along the waterfront, before more private home developments would be built. Two roughly parallel, high-speed railways run east-west between the central city and the Lake. He planned to build a three-kilometer-long linear park on the strip of land between the two railways (300-500 meters wide and about 140 hectares total). The west end of this Xingxi Park would merge with the Lakeshore Park, and its east end would be next to the Lake Yangcheng railway station. At this east end, I was invited to design the Visitor Center of the Park.
Instead of grabbing attention to its own architectural form, an ideal visitor center should first highlight the contents of the destination to entice visitors into continuing their exploration of the site. Xingxi Park is based on a rational strategy that converts a wasteland, merely glanced over by passersby, into a weekend leisure space for urban residents. If the former is common along highways in the land-rich US, the latter represents a pragmatic solution to the scarcity of land in high-density cities of the Yangtze River delta. The Park also has a straightforward landscape design. Rather than mimicking the Suzhou classical garden style or relying on amusement park rides, the design simply connects the many existing fish ponds and rivers to form a strip of wetland with plants typical of local rural areas. The three-kilometer-long linear plan fittingly accommodates several slow traffic systems, including hiking, biking (7 kilometers long), boating, and a planned horse carriage route. These inexpensive facilities support favorite activities of the majority of residents in today’s Chinese industrial cities.
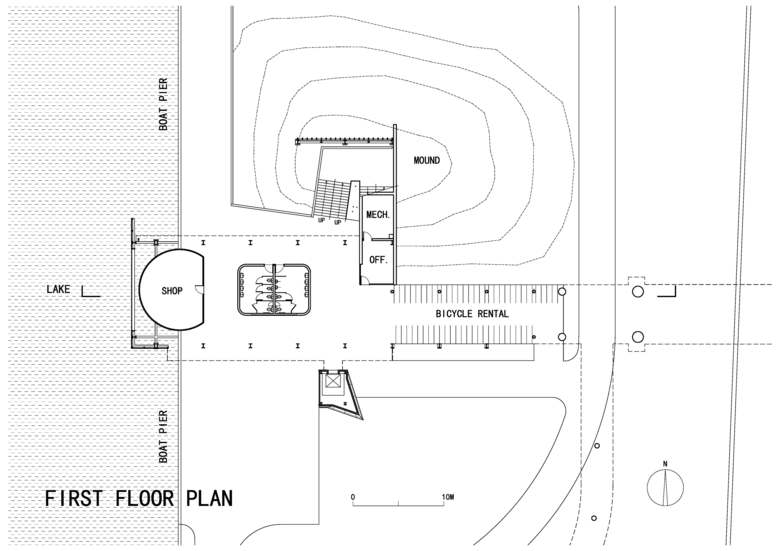
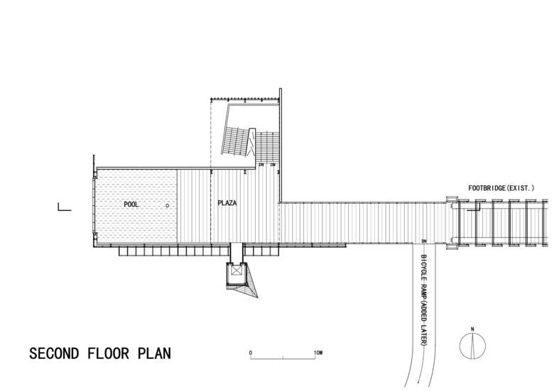
How should the Center present such a simple landscape to the visitors? The site offered an opportunity. The sunken Xincheng Road separates the site from the railway station plaza to its east. An existing footbridge connects these two, with the bridge floor 4.45 meters above the site. Because the railway station plaza has barrier-free connections to the surrounding sidewalks, bike paths, and several bus routes, we placed the entrance to the Center at the footbridge rather than on the ground of the site. Visitors enter the building via the second floor, affording them an overlook of the Park. Three “suspenseful” techniques further enhance the experience. First, the 73-meter-long footbridge is prolonged by an 18.7-meter-long extension, with façade module, floor material and railing matching that of the bridge. Once stepping on the bridge, people’s curiosity is aroused by a glimpse of the distant Center. But only after they pass through the 92-meter-long “corridor”, will they arrive at a second-floor plaza. Perforated aluminum panels and concrete wall of 3-5 meters high surround the plaza, with trellises floating 6-7 meters above the floor, making the plaza a semi-outdoor “hall”. Within it, people cannot see much of the surrounding landscape except through a huge semicircular gate, nine meters in diameter, in the middle of the western wall. Only within this unique framing the Park finally reveals itself. With these two preludes, it is hoped that the ordinary local landscape will appear extraordinary in visitors’ eyes. A shallow pool lies in front of the gate, seeming to lay an illusory path into the Park. But in reality people have to turn right and descend through a grand outdoor stair to the first floor where real paths into the Park begin. The temporary delay produces yet another suspense to strengthen one’s desire to explore.
Most part of the building is lifted on stilts to allow maintenance vehicles to pass the first floor. All utilitarian functions are accommodated here. A glass cylinder stands at the west end of the first floor, to be used for tourist orientation and a gift shop. Here people will find that the semicircular gate seen on the second floor is really the upper half of a circular opening, which echoes with the round plan of the shop. The east end of the first floor will be used for bicycle rental, with its own entry and exit. Public bathrooms with wood siding are nested in the middle of the first floor. They appear as an object detached from the building above, stressing the floating feel of the second floor. The west end of the building cantilevers over the river outside, flanked by boat piers on its south and north sides. The open ground to the south of the building will be used as a boarding area for the future horse carriage service. Lastly, both of the south and north sides of the Center are connected to the pedestrian/biking path system of the Park, making the Center a hub of the multiple tourist routes in the Park.
The two floors of the Center have completely different programs, above a mystical journey and below the pragmatic utilities. It is hoped that the design can offer the public some spiritual enjoyment in addition to the satisfaction of routine functions. Many recently completed visitor centers have ended up as mini malls or restaurants. I trust that the maturing Chinese urban middle class will demand public spaces to offer enjoyments beyond the level of eating, drinking and sensual stimulation. In its trial opening during recent years, many weddings were seen to take place in this Visitor Center. And people used the space in a similar pattern: they started from the footbridge, the couple were taken photographs in front of the gate and the pool, and descended through the grand stair. Such events affirms that the public knows how to create the best uses of a public space, as long as we do a good job in design and management.
During the construction, people asked why a vase containing a few plants was designed in the pool. My intention is that, even though the view in the gate and pool looks magnificent, its scale may be too big to be related to a person. It is hoped that a few weeds will assure the tiny individual to find his/her self in the greater world.
Publication
Archdaily.com, New Architecture (China, 2/2018)
- Année
- 2017
- Project Status
- Construit
- Client
- Kunshan City Construction Investment and Development Co. Ltd.
- Équipe
- Pu Miao
- Structure
- Shanghai Yuangui Structural Design Inc.
- Plumbing and electrical engineering
- Shanghai Far East Architectural Design Institute










