Brunnenhof
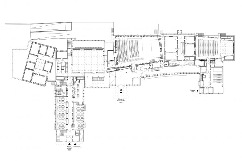
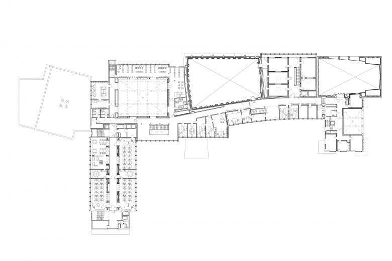
Located in Zurich’s sixth district, the Radiostudio Brunnenhof complex was built in two phases: the first by Otto Dürr (1932–1937) and the second by Willy Rost and Max Bill (1967). Parts of the complex have listed status. Today, the surrounding Unterstrass neighbourhood is rapidly growing and changing, resulting in an increased demand for school spots and associated lunchtime and after-school programming in the area. Once the radio studio has relocated, the building ensemble will help meet this need when it is converted into a secondary school and music centre.
The complex’s existing infrastructure offers a singular opportunity to establish a centre with a unique mixed programme that draws visitors from beyond the school district. Thanks to outstanding acoustics and convenient locations within the building, the two large former studios in particular are ideal for use by both the secondary and music schools – as well as for events by outside groups associated with the City of Zurich.
The project aims to integrate the operational requirements of a school into the building fabric as seamlessly as possible while also making the formal disposition of the existing structures more legible. As such, the main entrance will be accentuated by a generous, welcoming canopy that serves to improve orientation for all users and provide external visitors with an entry sequence worthy of a top-tier concert venue. The music school will link a series of contiguous event spaces and music rooms to form a self-contained entity set apart from the secondary school.
Students of the secondary school will reach their classrooms via a new staircase leading up from a decluttered entry foyer. The former radio tower’s layout is perfectly suited for educational use: it can be organised into clusters of three classrooms, two breakout rooms, and a common area each – ideal for contemporary educational and childcare concepts. On the ground floor, a dining hall with a new kitchen and terrace will be built to meet the requirements of an all-day school. Even before the new construction which constitutes the second phase is completed, one room for gymnastics and another for active play will provide the necessary space for physical education instruction.
The entire complex will remain accessible even outside of school hours. In phase three, outdoor areas for sport and play as well as green space will be created, vehicular access and parking streamlined, and the grounds improved in terms of their microclimatic conditions. Technical improvements will be made to the building as a whole as well as to its structural and mechanical systems, and the building’s energy efficiency will be enhanced.
- Reconversions + extensions
- Écoles
- Centres de formation + apprentisage
- Salles de concert + Auditoriums
- Année
- 2020-2025
- Project Status
- Design






