Longing 500 mg

Travessa da Regeneração 144, Porto, Portugal
Photo © João Morgado

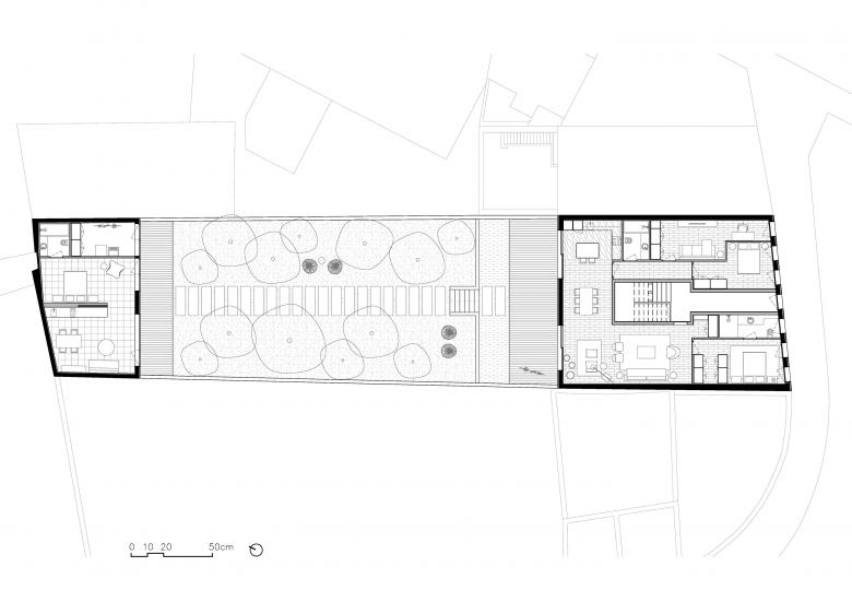
The plot of this apartment is a classic example of narrow and deep plots in the city of Porto, in Portugal. The urban fabric of Porto's historic core is made up of plots measuring just 6 or 8 meters in front, set in very deep blocks. The result of this mesh is disproportionately long plots, which generate unusual green areas in the middle of the blocks, and apartments with a surprisingly generous private area. Such non-aedificandi areas are even more surprising given the location of several of them in the central area, mainly in the neighborhoods of Santo Ildefonso, Paranhos and Cedofeita.

In addition to being improbable, they are unexplored and expectant voids that contrast with the historical burden present on the urban front of the old city. If in the streets of the historic core everything is memory and typology, here the freedom of non-construction and the reverse aesthetics predominate.

The domesticity of the apartment is illuminated by two spaces, one private and the other public. The first is the deep garden, where a grove of magnolias (Magnolia grandiflora) has been planted on a more or less wild meadow. This is not a single species lawn: it is a mixture of two grasses and 20 species of flowers. It is a cover that requires little maintenance, has a biodiversity that lawns do not have, and is open to the appearance of non-planted species, including urban weeds that would be harmful in a conventional lawn. It is a garden that comes close to the concept of Urban Nature by geographer Matthew Gandy, or a nature that belongs solely and exclusively to cities. It is also a typical “secret garden” in the center of Porto.

The second illuminating space is Travessa da Regeneração, a narrow alley that has some sections marked by local graffiti artists. One of them could be the artist Add Fuel, who would have applied the stencil "Saudade 500 mg" (Longing 500 mg) right in front of the window of one of the apartment's rooms. Others left intentionally non-copyright drawings and doodles. Saudade 500 mg, a melancholic and coded message, uses this unique word from the Portuguese language and says a lot about a country that suddenly opened up to the tourism industry and to foreigners from Portuguese-speaking countries. Other messages in the region reflect the side effects of this industry ("Tourist go home"), manifestos and calls ("Against the rising cost of living, join in"), and still others that are surprisingly sympathetic ("Today is a good day!") or loving ("I love you, Cristina"). The fact is that the small chaos of these phrases that appropriate the urban space is in a very narrow stretch of Travessa – it is less than three meters wide -- and is stamped on a wall towards which the rooms in the intimate part of the apartment face (the three bedrooms). That is, it is an unexpected short circuit between the domestic and the public.

The apartment itself is the ground floor unit in a building designed by the well-known Pedro Ferreira Architecture Studio and where two one-bedroom apartments were originally located. Our project transformed the two T1 into a T3 (three bedrooms) and that is why the floor plan has a U-shape, surrounding the common stairwell.

The suite's room is dominated by the red tone, the kitchen is structured by water-green cabinets in a typically Portuguese configuration, and the bathrooms are marked by the geometric floor in a neo-concrete pattern. And, common to all rooms, an abundant natural light that comes from the graffitied alley and the secret garden.

Photo © Carlos M Teixeira
Photo © João Morgado
Photo © Carlos M Teixeira
Photo © João Morgado
Photo © João Morgado
Photo © João Morgado
Photo © João Morgado
Photo © João Morgado
Photo © João Morgado
Photo © João Morgado
Photo © João Morgado
Photo © João Morgado
Photo © João Morgado
Photo © João Morgado
Photo © João Morgado
Photo © João Morgado
Photo © Carlos M Teixeira
Photo © Carlos M Teixeira
Photo © Carlos M Teixeira
Photo © Carlos M Teixeira
Photo © Carlos M Teixeira
Dessin © Vazio S/A
Dessin © Vazio S/A
Dessin © Vazio S/A (after Pedro Ferreira)
Année
2023
Project Status
Construit

Autres projets de Vazio S/A 

The World is Man's Theater
Brumadinho, Brésil
Hypostyle Mosque
Dubai, Emirats Arabes Unis
Paysage de Feu
Chaumont sur le Loire, France
Cerrado House
Moeda, Brésil
Structural Archaeology
Belo Horizonte, Brésil