Weinzeit im Schloss

Brackenheim, Germania
Stadtraum „Weinzeit im Schloss“ | WB Überarbeitung [2011]

WB2 - ÜBERARBEITUNG
Aus dem 1. WB „Weinkompetenzzentrum Brackenheim“ [2010] - gingen zwei „gleichrangige 1. Preise“ hervor - so wurde in einer WB- Überarbeitung „Weinzeit im Schloss“ [2011] abermals unser Entwurf mit dem 1. Preis prämiert.

KONTEXT | ORT
Der Ort verlangt einen respektvollen Umgang mit dem Denkmal - einerseits das historische Schloßgebäude „aus der Renaissance“ über alle Ebenen mit „neuem Leben“ zu füllen und in das Gesamtkonzept „Weinkompetenzzentrum“ mit einzubinden - andererseits den bereits mehrfach überbauten östlichen Anbau stadträumlich zu stärken und das Schloss näher an den Stadtraum zu rücken. Zur Altstadt wird mit der neuen Erschließung ein neuer „Kopfbau“ geschaffen, der zur Obertorstraße hin eine klare Raumkante bildet und somit den Stadtraum deutlich aufwertet.
Der „verschüttete Schlossgraben“ soll hier in seiner prägnanten, historischen Bedeutung wieder hergestellt und erfahrbar werden und wird thematisch auch als Museumsgraben genutzt. So entsteht ein grünes, zusammenhängendes Band (Graben) um das Schloss, das bis an die Innenstadtkante heranreicht.

RAUM | GESTALT
Ziel war es ein zurückhaltendes, skulpturales Gebäude zu schaffen, das sich einerseits im Kontext behaup- tet, andererseits aber gegenüber dem Gesamtensemble „historische Schlossanlage“ in seiner reduzierten Detail- und Materialsprache nicht dominiert. Im Inneren entstehen differenzierte Raumfolgen - rund um das Thema Wein - die Entree und Information, Restaurant im Schloß und Weinprobe am Museumsgraben inner- halb eines Rundgangs aufnehmen.

PREIS:GERICHT WB1
„Der Anbau fügt sich harmonisch in die städtebauliche Situation zum Schlossensmeble ein. Die alte Stadtgrenze wird durch das Reaktivieren des 'historischen Schlossgraben' durch den Entwurf erkennbar heraus gearbeitet. Über diesen neuen Graben werden die UG - Bereiche natürlich belichtet. Die Gebäudeproportion passt nach Meinung des Preisgerichts ins Ge­bäudeensemble der Obertorstraße, schließt sich jedoch etwas zu do­minant an den Ostflügels des Schlosses an, weshalb ggf. eine Reduzierung um ein Geschoss empfohlen wird. Nach Meinung des Preisgerichts sollte im Entwurf die Anzahl der gestalteten Archltekturelemente der Außenfassade zurück genom­men werden, um nicht im Widerspruch zu der homogenen Gesamt­struktur der vorhandenen historischen Gebäude zu stehen.“ ... [Auszug PG-Protokoll ]

Weinkompetenzzentrum“ Brackenheim - WB1 [2010] | 1.Preis
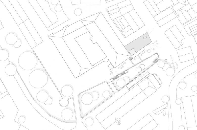
Lageplan 1:500 | WB Überarbeitung [2011]
1.OG - Galerie & Restaurant | WB Überarbeitung [2011]
Modell 1:100 | WB Überarbeitung [2011]
EG Info & Entree Restaurant | WB Überarbeitung [2011]
Treppenraum | WB Überarbeitung [2011]
UG Vinothek - Belichtung & Blick Museumsgraben | WB Überarbeitung [2011]
Anno
2011
Ideen- und Realisierungswettbewerb
2011, 1. Preis nach Überarbeitung
Auslober
Stadt Brackenheim
Modellbau und Visualisierung
Martin Smyk

Altri progetti di Christine Remensperger 

Olympia 2012
Leipzig, Germania
Gymnasium Pfullendorf
Pfullendorf, Germania
Weissenhof 2027
Stuttgart, Germania
Weingut Heid, Erweiterung & Sanierung
Fellbach, Germania
Umbau Weingut Heid
Fellbach, Germania