Einfamilienhaus Pantloo
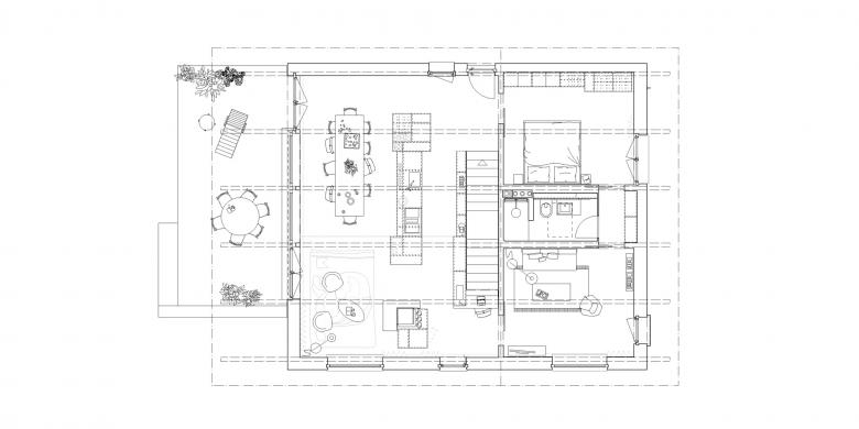
Das neue Stöckli an der Pantloostrasse in Dübendorf liegt in einem Einfamilienhausquartier in durchgrünter, zweiter Reihe und zeigt sich mit zwei unterschiedlichen Gesichtern: In Richtung Hermikonstrasse erweitert es repräsentativ das bestehende Einfamilienhaus zu einem harmonischen Ensemble, zum grossen Garten hin duckt sich das Stöckli als eingeschossiger Pavillonbau unter den grossen alten Nussbaum. Die gewählte Konstruktion, ein massiver Holzbau, steht stellvertretend für diesen spannungsvollen Spagat. Auch die eigenwillige Dachform sucht auf konzeptueller Ebene den Bezug zum Bestand und vermittelt trotzdem Eigenständigkeit. Zudem unterstützt sie die räumliche Öffnung des Hauptwohnraums zum Garten.
Einheimisches Holz ist sowohl innen wie aussen das prägende Element. In ausgewogener Wechselbeziehung kommen Lärche und Fichte gleichermassen zum Zug. Der Hartbetonbelag als auch die sechs Meter hohe, tragende Innenwand weisen den Weg vom Eingangsgeschoss über die Treppe in den grosszügigen Hauptwohnraum. Hier zeigen sich rundum die tragenden Massivholzwände, während in den restlichen Räumen ein ungestrichener Lehmputz die warme Atmosphäre der privaten Zimmer unterstreicht. Die Erdsonde wärmt im Winter und kühlt im Sommer. Das Photovoltaik-Indach liefert Strom weit über den Eigenbedarf hinaus in die direkte Umgebung.
- Anno
- 2020
- Project Status
- Costruito
- Cliente
- Privater Auftraggeber
- Landschaftsarchitektur
- Atelier Oriri Landschaftsarchitekten GmbH, Kehrsiten
- Holzbauingenieur
- Neue Holzbau AG, Lungern
- Bauingenieur
- Lukas Baumann AG, Bremgarten
- Gebäudetechnik
- Concept-G AG, Winterthur
- Elektroplanung
- WSMAG, Walter Salm, Meier & Partner AG, Zürich
- Fotografie
- Andreas Graber Photography, Zürich

