Fire Station Sittard

Swenitboldstraat, Sittard, Paesi Bassi
Front faccade
Visualizzazione © Coenen Sättele Architecten

Fire Station Sittard

The design of the new fire station is based on the highly functional space program and the urban planning conditions of the residential area.
The differently high building parts are connected by a folded roof, which also accentuates the transparent corner of the building, where an old handcart of the fire brigade is exhibited
The wooden façade cladding and the main wooden structure mirror the high sustainable ambitions of the project and anchor the building in a natural way through color and material in the context, which is characterized by beautiful old trees

Front facade
Visualizzazione © Coenen Sättele Architecten
Front facade
Visualizzazione © Coenen Sättele Architecten
South facade
Visualizzazione © Coenen Sättele Architecten
Birds eye view
© Coenen Sättele Architecten
Roof plan
Disegno © Coenen Sättele Architecten
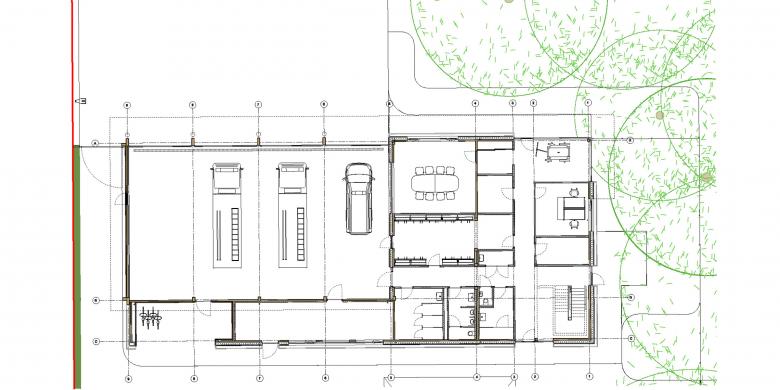
Ground floor
Disegno © Coenen Sättele Architecten
First Floor
Disegno © Coenen Sättele Architecten
Anno
2022

Altri progetti di Coenen Sättele Architecten 

Hotel Heppie Veluwe
Vierhouten, Paesi Bassi
Masterplan Vaals
Vaals, Paesi Bassi
Kerkveld Vaals
Vaals, Paesi Bassi
Villa H
Hilvarenbeek, Paesi Bassi
Villa N
Bergisches Land, Germania