Neubau Atelierhaus in Rehetobel
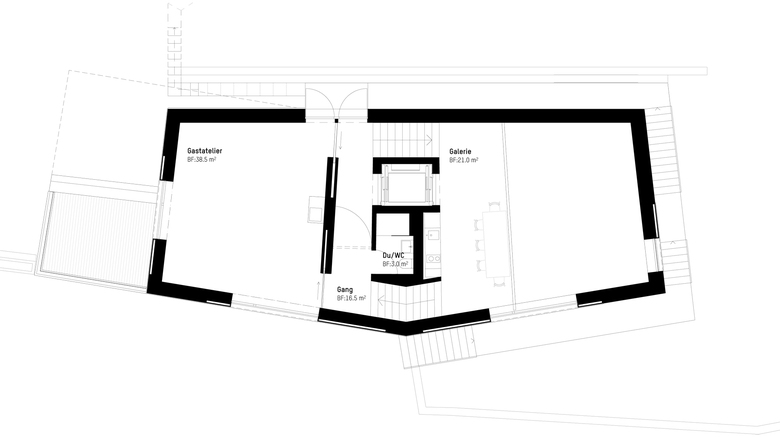
Für das künstlerische Schaffen und das Betreiben einer Galerie wurde in Rehetobel ein Grundstück für ein Atelierhaus gefunden. Die Lage der Parzelle bietet wunderbare Ausblicke in die hügelige Landschaft des Appenzellerlandes, aber auch einen Blick auf den alten Dorfkern und die erhöhte Lage ermöglicht einen ebenbürtigen Blick auf den Kirchenturm. Der Ort dient als Inspirationsquelle der Künstler und Künstlerinnen. Die Landschaftsbilder werden durch grosse Fensteröffnungen in den Innenraum transferiert. Im Innenraum ist der Bau sehr klar organisiert. Um einen Liftkern führt die Treppenanlage im Splittlevel von halb zu Halbgeschoss. Dabei ist der Ausstellungsbereich zweigeschossig mit Galerie.
Damit sich das Haus gut in den ländlichen Kontext einfügt, wurde ein Holzbau mit einer dunkel, vorvergrauten Holzfassade gewählt. Werden die Schiebeläden geschlossen, kommen bunte Fassadenbleche zum Vorschein, welche die Nutzung der mit Farben arbeitenden Künstlerin erahnen lassen. Die vertikale Holzschalung wird mittels horizontalen Bändern gegliedert. Die Abdeckbleche sowie die Fenster und das Dach sind in Metall ausgeführt.
Für den vorfabrizierten Holzbau wurde ein Sockel aus Sichtbeton ausgebildet, welcher der ansteigenden Topografie folgt. Der Holzbau, der durch die Ausstellungsnutzung als gewerblicher Bau eingestuft ist, muss auch die Bestimmungen des Brandschutzes erfüllen. Das offen gestaltete Raumkontinuum kann mittels Brandfalltüren in zwei Brandabschnitte unterteilt werden. Dabei trennen die Holzbetonverbunddecken, sowie massive Sperrholzwände (15cm Stärke) die Brandabschnitte. Der obere Bereich kann über die Türe im 1. Obergeschoss, der untere Bereich über den Haupteingang entfluchtet werden. Auch die hinterlüftete Fassade ist mittels Chromstahlblechen in den horizontalen Bändern abgeschottet.
Im Innenraum wird der Holzbau vor allem durch die über alle Geschosse durchlaufenden Deckenuntersichten erlebbar. Dazu wurden die einzelnen Bretter in unterschiedlichen Höhen verleimt, so dass eine lebendige plus-minus Struktur entsteht, die auch akustisch Vorteile verschafft. An den Wänden wurden Fermacellplatten verspachtelt und weiss gestrichen, so dass ein neutraler Grund für das hängen der Kunstwerke geschaffen wird. Während die Holzdecke mit einer weissen Lasur aufgehellt ist, kommt das Holz bei den geölten Eichenparkett nochmals in seiner Natürlichkeit zur Geltung.
- Anno
- 2017
- Team
- Michael Bösch, Arben Arifi, Mirjam Ackermann







