LFS Güssing Lehr- und Wirtschaftsbetrieb

Stremtalstraße 19, Güssing, Austria
Foto © Paul Ott

Das gegenständliche Projekt geht von einer kompletten Neuerrichtung der Gesamtanlage aus. Von der Variante, Teile des Bestandes zu erhalten und zu adaptieren, wurde insofern Abstand genommen, da die Substanz des Bestandsobjektes zum Teil nur mit hohem Aufwand zu sanieren wäre und dennoch nicht die optimalen Funktionen für einen zeitgemäßen Betrieb leisten kann. Im Zuge der Planung hat sich außerdem gezeigt, dass die geforderten Ausmaße der Anlagen einen ganz anderen Maßstab erzeugen, in dem Teile des Bestandes schlecht zu integrieren wären.

Funktionale Lösung:
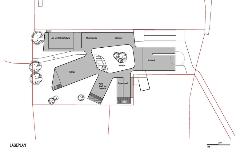
Die Stallanlagen werden um einen zentralen Hof herum angeordnet. Dies bewirkt einerseits kurze Wege und Übersichtlichkeit von jedem Punkt des Hofes aus. Für die Mitarbeiter ist hohe Effizienz in der Bewerkstelligung der täglichen Arbeiten gewährleistet. Über ein umlaufendes Vordach können witterungsgeschützt alle Teile erreicht werden. Die Ställe greifen radial in die Umgebung und werden von Freiräumen, Luft und Sonne umspielt. Somit wird den Tieren genügend Außenraumbezug verschafft. Nach Nordwesten hin bildet der Wirtschaftstrakt einen witterungsschützenden Abschluss. Der Lehrtrakt bildet den Beginn der Anlage von der Stremtalstraße her. Hier ist auch die Reithalle als der am ehesten öffentlich zugänglichen Teil des Ensembles angeordnet.

Konstruktiver Lösungsansatz:
Im Prinzip sind 3 tektonische Ebenen artikuliert, die in den jeweiligen Materialien ihren Ausdruck finden:
• Die erdanliegenden Bauteile aus Betonelementen
• Die aufgehenden Bauteile als Holzleichtbau bzw. Holzstabkonstruktionen
• Die Dächer als Flächentragwerke aus Trapezblech mit extensivem Gründachaufbau

Ökonomie der Lösung:
Gemäß oben angeführtem konstruktivem Lösungsansatz wird die der jeweiligen tektonischen Position angepasste und optimierte Bauweise gewählt: Beton, Holz, Trapezblech – jeweils dort eingesetzt, wo sie am leistungsfähigsten sind.
Keine Zwischenlösungen mit PVC-Tunnel, dafür Phasenkonzept für die Errichtung.

Ökologische und energetische Nachhaltigkeit der Lösung:
Es kommen ausschließlich ressourcenschonend erzeugte und recyclingfähige Baustoffe zur Anwendung. Bewusst wurde von einem PVC-Tunnel Abstand genommen. Die Gründächer puffern die Aufprallhitze auf die Dächer im Sommer.
Das im Zuge der Bautätigkeit anfallende Erdmaterial wird zu Geländemodellierungen verwendet.

Architektonischer, gestalterischer Lösungsansatz:
Die Ställe strecken sich locker wie Finger in die umgebende Landschaft. Die Anlage erscheint eher als ein Cluster, denn als vierkanthofartiges Bollwerk. Bewusst werden die Bauten als Teile des Landschaftlichen gesehen, die sich aus den umgebenden Wiesen herausfalten und deren Dächer quasi als hochgestelzte Grasnarben in Erscheinung treten. Das Ganze ist ein locker gestreuter LANDwirtschaftsbetrieb und keine kompakte Industrieanlage.

Foto © Paul Ott
Foto © Paul Ott
Foto © Paul Ott
Foto © Paul Ott
Foto © Paul Ott
Foto © Paul Ott
Foto © Paul Ott
Disegno © pxt
Disegno © pxt
Anno
2015
Project Status
Costruito
Cliente
BELIG Beteiligungs- und Liegenschafts GmbH
Architektur
Pichler & Traupmann Architekten
Entwurfsteam
Christoph Degendorfer, Bartosz Lewandowski
Projektteam
Barbara Aull (Projektleiterin), Luca Baumgartner, Klemens Gabriel, Clemens B. Hasler, Steve Stiglmayr, Wolfgang Windt
Größe
4.404 m²

Altri progetti di Pichler & Traupmann Architekten 

Krems - Badarena NEU
Willi Resetarits-Hof
Wien, Austria
POST AG "1030 Rasumofskygasse – Büro und Geschäftsgebäude"
Wien 3, Austria
Netzkulinarium
Wien, Austria
Haus Hackenbuchner
Wien, Austria