Chiropraxis im Rank
Skelett im Raum
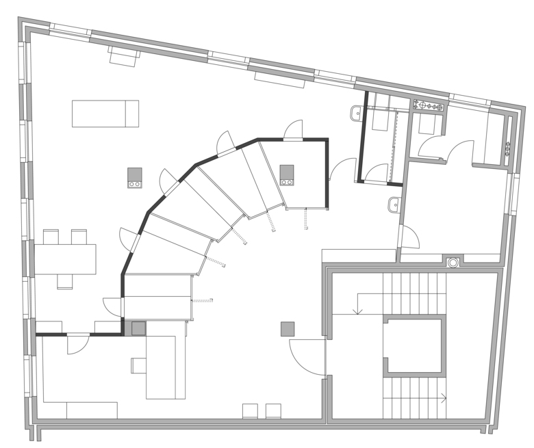
Der Kernpunkt des Projektes umfasst den möbelartigen Einbau von fünf Umzieh- und Untersuchungskabinen, die mit dem Empfangskorpus zu einem markanten Raumkörper zusammengefasst werden. Der Raumkörper unterteilt die Praxis in Eingangs- und Behandlungsbereich. Die Kabinen erweitern den Eingangsbereich und dienen zugleich als Filter zum dahinterliegenden Behandlungsraum.
Konstruktion und Materialwahl
In Anlehnung an das Metier des Chiropraktikers werden die Kabinen wie Teile eines Skeletts ausgebildet. Den Gelenken einer Wirbelsäule vergleichbar reiht sich Einheit an Einheit, bleibt aber als Teil eines Ganzen ablesbar. Die fragmentarische Erscheinung wird über die indirekte FL-Beleuchtung unterstrichen. Trennwände und Türen sind aus einbrennlackierten Metallblechen ausgeführt. Wie bei Kuchenblechen werden die Ränder der Bleche einfach oder doppelt umgefalzt, wodurch die weichen Bleche ihre statische Festigkeit erhalten. Die konstruktiv bedingten Blech-Fälze bestimmen die architektonische Erscheinung und dienen sowohl als Türgriff, Türanschlag, Befestigungsort der Schwingscharniere wie der unsichtbaren Plazierung der Leuchtkörper.
Projekt: Chiropraxis Im Rank, Zürich
Adresse: Schärrergasse 2, 8049 Zürich
Praxisumbau
Direktauftrag
Bauherrschaft: Dr. Sandra Mani
Fertigstellung: 2000
- Architetti
- Felder Architektur
- Anno
- 2000
- Project Status
- Costruito
- Cliente
- Dr. Sandra Mani
- Team
- Lukas Felder, Evelyn Chiappori








