House Destelbergen
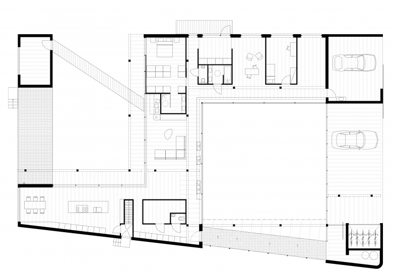
This S-shaped house consists of meandering volumes, pathways and covered terraces that are woven into the surrounding natural landscape. In doing so, part of the landscape is embraced as a kind of inner garden. Though the dark volume seems rather anonymous from the street side, the facades become increasingly more transparent towards the garden in the back, allowing for privacy and openness where wanted. It is but a translucent screen in the front facade that allows a sneak peek of the interwoven play of volume and greenery behind.
In the back, the building hovers slightly above the landscape, just enough so one can tell where one ends and the other begins. This single-family home is on many levels conceived as a complementary, natural element to preserve as much as possible what was already there; from its organic plan layout to its materialization (concrete + timber frame structure) and energetic impact.
- 年
- 2020






