WITTENSTEIN Innovationsfabrik

Igersheim-Harthausen, ドイツ
写真 © WITTENSTEIN/Joachim Schmeisser

Mit dem Neubau der Firma WITTENSTEIN wurde das Ziel der Stärkung der Innovationsfähigkeit, die Halbierung von Entwicklungszeiten sowie die Entwicklung eines flexiblen, modular erweiterbaren Gebäudekonzepts mit Kommunikationsräumen zur Wissensgenerierung verfolgt.
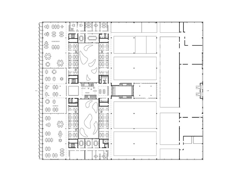
 Die Lage des Gebäudes am Hang eröffnet die Möglichkeit, dass Denk- und Produktionsflüsse linear auf einer Ebene stattfinden können. Die Räume für Entwicklung, Produktion und Versand sind parallel entlang der Hauptachse des Gesamtkomplexes angeordnet. Durch diese gemeinsame Anordnung aller am Produktionsprozess beteiligten Bereiche wird Innovation maßgeblich begünstigt.
 Das Foyer - Marktplatz genannt, welches u.a. für Ausstellungen genutzt wird, erschließt den Kommunikationsfluss für die Öffentlichkeit. Der Kundenweg ist als Galerierundgang angelegt, der Einblicke in die Projekträume sowie in die Produktionsbereiche gewährt. Lichtdurchflutete, acht Meter hohe, akustisch optimierte Projekträume bieten viel Raum für kreatives und vernetztes Arbeiten. Die repräsentativen Kundenbesprechungsräume im Zentrum sind mit modernsten Präsentationstechniken und dem „Virtual Sky“, einem bewegten Himmel ausgestattet, der nach Untersuchungen vom Fraunhofer-Institut eine bessere Leistungsfähigkeit ermöglicht. 
Die Deutsche Gesellschaft für nachhaltiges Bauen hat das durchgängig ökologische und ökonomische Gesamtkonzept bereits mit dem DGNB Vorzertifikat in Gold honoriert. Ressourceneffizienz wurde beispielsweise durch den Einsatz von ökologischen, recyclebaren Materialien, eigener Stromerzeugung durch eine Kraft-Wärme-Kopplung Anlage, und einer PV-Anlage am Dach erreicht.

写真 © WITTENSTEIN/Joachim Schmeisser
写真 © Joachim Schmeisser
写真 © Joachim Schmeisser
写真 © Joachim Schmeisser
写真 © Joachim Schmeisser
写真 © WITTENSTEIN/Joachim Schmeisser
写真 © WITTENSTEIN/Joachim Schmeisser
写真 © WITTENSTEIN/Joachim Schmeisser
写真 © HENN
2014
クライエント
WITTENSTEIN AG
Fachplaner
Sailer Stepan und Partner; Ingenieurbüro Mayer, Ottobeuren; Stefanie Jühling Landschaftsarchitektin, Kersken + Kirchner GmbH; PMI Ingenieure und Bauphysik; Ingenieurbüro Planung Blei, Lumen³.

HENN によるその他のプロジェクト 

Westlake-Universität
Hangzhou City, China
Ritz-Carlton AURA Restaurant
Wolfsburg, ドイツ
Medizinische Hochschule Hannover
Hannover, ドイツ
Edge Hafencity
Hamburg, ドイツ
Vertical Farmhouse
Berlin, ドイツ