Haus F
Die Gemeinde Denkendorf liegt idyllisch an den nach Süden abfallenden Hängen der Filderebene. Oberhalb des fast 900 Jahre alten Ortskerns mit seinem markanten Kloster hat die Ippolito Fleitz Group für designbegeisterte Auftraggeber ein Einfamilienhaus gestaltet. Eine spannende Herausforderung war es, nicht nur deren ästhetischen Vorstellungen und Ansprüchen an eine nachhaltige Bauweise, sondern auch den örtlichen Bauvorschriften zu genügen.
Insgesamt lebt das Haus von seinem Außenbezug. Entwickelt wurde ein monolithischer Baukörper, der das Haus mit seinen verschiedenen Elementen wie aus einem Guss erscheinen lässt. Diese Einheitlichkeit wird durch den gleichen grauen Farbton unterstrichen, der sich in den Dachziegeln wie der glatt verputzten Fassade wiederfindet. Mit dem Giebeldach sowie den Trauf- und Firsthöhen wird Bezug zur Nachbarbebauung aufgenommen, von der sich der Bau auch durch die Anordnung der einzelnen Elemente, die ihm sein unverwechselbares Äußeres verleihen, visuell absetzt. Der Dachfirst ist asymmetrisch angelegt und wird in seiner Wirkung durch den überproportional ausgeführten Schornstein noch verstärkt. Aufgebrochene Strukturprinzipien charakterisieren auch die Fassadengestaltung: Die Fenster in den einzelnen Geschossen sind in unterschiedlichen Höhen, Breiten und Formen ausgeführt. Durch vorspringende oder zurückgesetzte Gebäudeteile wie den Glasvorbau, die Garage oder den Eingangsbereich wird das Haus zusätzlich rhythmisiert, sodass der Bau aus jeder Perspektive ein überraschendes neues Gesicht erhält.
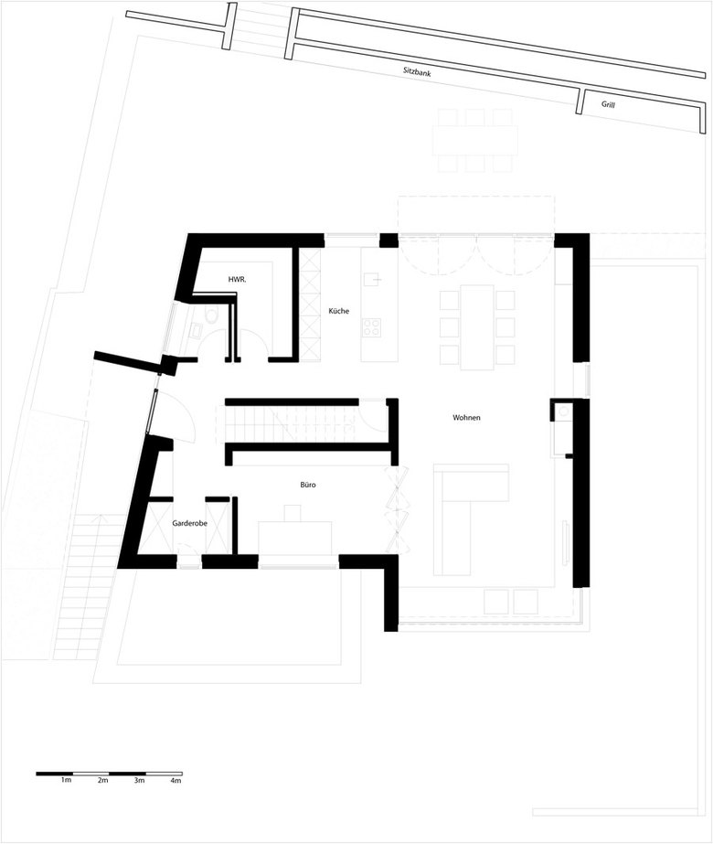
Das Haus erstreckt sich über drei Ebenen. Die untere Wohnebene mit Büro, Gästezimmer und -bad, Garage und Abstellräumen befindet sich auf Straßenniveau und wurde sie als klimatischer Puffer ausgeführt. An einer Seite wurde ein Lichthof in den Hang gegraben. Dadurch kann ein Großteil der Räume im Untergeschoss außerdem mit Tageslicht versorgt werden und die windgeschützte kleine Terrasse, die man über das Büro erreicht, schafft ein zusätzliches Angebot für Entspannung an der frischen Luft.
Grundidee für das zentrale Wohngeschoss war es, einen loftartigen Raum zu kreieren, wie ihn die Auftraggeber von ihrer bisherigen Stuttgarter Stadtwohnung gewöhnt waren. Küche, Wohn- und Essbereich sowie eine Bibliothek organisieren sich als offene Einheit um den Treppenhauskern. Die ganz in weiß gehaltene Küche separiert sich lediglich durch den freistehenden Tresen vom Essbereich. Dieser ist das kommunikative und soziale Zentrum der Wohnung – und ein lichtdurchfluteter Ort. Über eine große Fensterfront mit Tür kann man dieses an warmen Tagen zur Terrasse hin erweitern. Tageslicht aus Richtung Süden verbunden mit einer großartigen Aussicht auf den Ort erreicht den Esstisch auch über ein L-förmiges Panoramafenster im sich anschließenden Wohnbereich. Dessen Glasvorbau verleiht der Wohnebene die gewünschte Großzügigkeit und ist zudem ein Platz für Romantiker: Auf einer beheizten Fensterbank aus Sichtbeton kann man stundenlang beim Blick in die Ferne die Seele baumeln lassen. Für Behaglichkeit sorgt außerdem der in einen Wandvorsprung eingelassene Kamin. Der eingestellte, offene Treppenkern verknüpft die drei Ebenen des Hauses miteinander. Seine verschiedenfarbigen Wandflächen stehen im spannungsvollen Kontrast zum sonst im gesamten Haus dominierenden Weiß. Eine besondere Inszenierung erfährt dabei der Weg hinauf in den Privatbereich im Obergeschoss, der vom Tageslichteinfall am Ende der Treppe begleitet wird. Drei langgezogene Lampen-Zylinder verleihen dem Treppenschacht zusätzliche Höhe. Oben angekommen öffnet sich dann unter dem in die Dachfläche abknickenden Fenster ein aussichtsreicher Spiel- und Leseplatz. Die im Obergeschoss untergebrachten Räume – darunter zwei Kinder- sowie das Schlafzimmer – erstrecken sich bis unter das Dach, wodurch sie sehr großzügig wirken.
Der Boden ist im gesamten Haus mit einer anthrazitfarbenen mineralischen Beschichtung versehen, die dessen Herstellungsspuren als gewünschtes Muster konserviert. Für die Terrassengestaltung wurde ein optisch ähnlicher Zementestrich gewählt, sodass Wohnebene und Außenbereich ein homogenes Bild ergeben. Ganz unterschiedlich kann dagegen der Flur am Küchenbereich erscheinen. Eine programmierbare LEDLichtleiste an der Decke verwandelt diesen bei Dunkelheit in eine der eigenen Stimmung entsprechende Lichtfarbe.
Das Haus ist in Niedrigenergiebauweise errichtet und wird mittels Erdwärme aus zwei über 100 m tiefen Bohrungen versorgt. Als Brauchwasser dient Regenwasser, das in einer 5000 fassenden Zisterne gesammelt wird.
Kunde
privat
Fläche
300 m²
Team
Peter Ippolito, Gunter Fleitz, Minka Ludwig, Jing Zhao, Hadi A. Tandawardaja
Fotos
Bruno Helbling
Magazine
01/2017 100 Deutsche Häuser
11/2016 100 deutsche Häuser
03/2013 VivaDecor (Ukraine)
01/2011 Decor (Russland)
07/2010 Casa Deco (Deutschland)
05/2010 Archidea (Ukraine)
02/2010 IW (Südkorea)
08/2009 Einfamilienhäuser bauen (Deutschland)
01/2009 Architektur+Küche (Deutschland)
Bücher
01/2011 inSIDE; outSIDE Residence (China)
10/2010 Grüne Wohnträume (Deutschland)
05/2010 Global Trendy House Collection (China)
Online-Medien
03/2016 AD (Mexico)
05/2012 freshome
- 年
- 2008
- Project Status
- 竣工済






