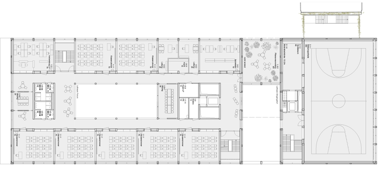
Baugewerbliche Berufsschule

Limmatstrasse, 8005 Zürich, スイス
2018
チーム
NOA Landschaftsarchitektur

Leuppi & Schafroth Architekten によるその他のプロジェクト 

Langsamverkehrsbrücke
Bern-Wankdorf, スイス
Mehrfamilienhaus Haldenstrasse
Zürich, スイス
Rheinfall Besucherzentrum
Laufen-Uhwiesen, スイス
Limmatsteg mit Promenadelift
Baden / Ennetbaden, スイス
Erweiterung Kantonsschule Rychenberg und im Lee
Winterthur, スイス